Red Hook Charmer With Two Decks, Private Parking Asks $1.65 Million
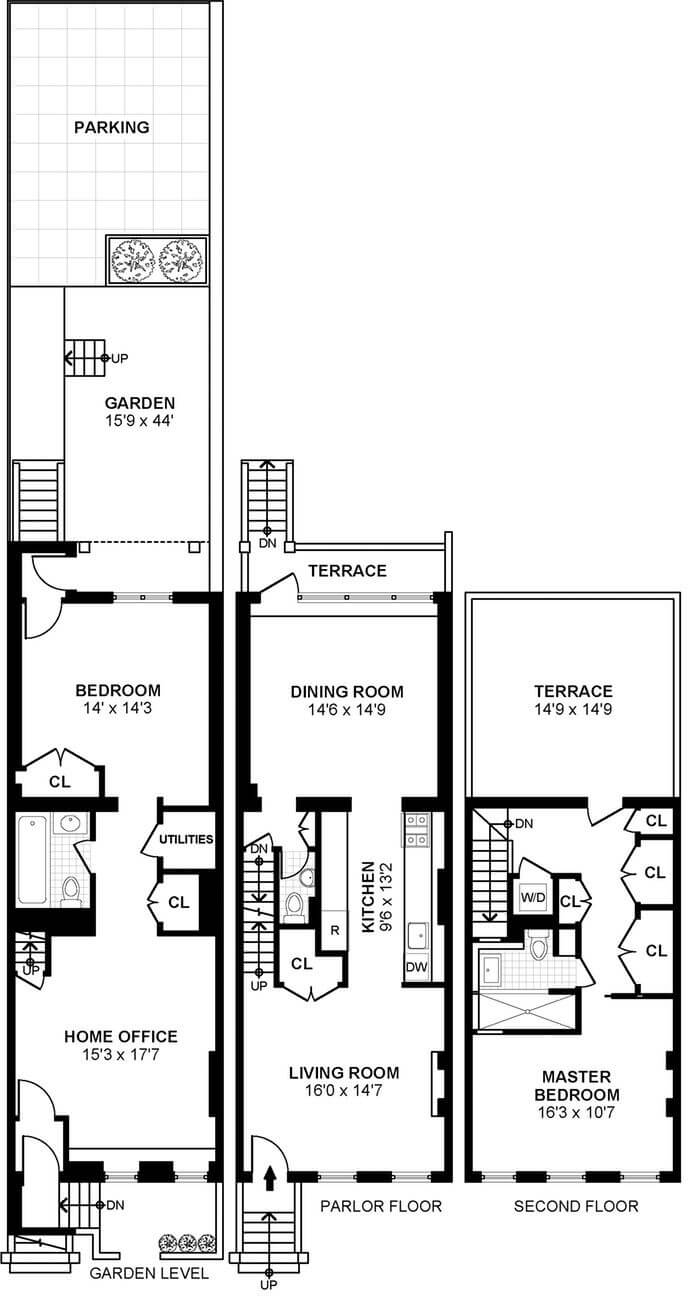
This three-story brick house at 82 Pioneer Street in Red Hook has a rustic, cottage-like vibe, with its painted wood floors, beamed ceilings and painted brick walls. A legal two-family, it’s set up as a single residence, with two bedrooms and 2.5 baths.
This three-story brick house at 82 Pioneer Street in Red Hook has a rustic, cottage-like vibe, with its painted wood floors, beamed ceilings and painted brick walls. A legal two-family, it’s set up as a single residence, with two bedrooms and 2.5 baths.
One of the bedrooms is on the garden level; the master is on the top floor. It’s got a skylight, and shares the floor with an en-suite bath, a washer and dryer, a bank of closets, and a terrace in the rear.
There’s a second deck downstairs off the rear dining room, and a narrow but attractive garden below. Beyond the garden is a gated parking spot.
Save this listing on Brownstoner Real Estate to get price, availability and open house updates as they happen >>
The kitchen is long and narrow, nicely done with a stone countertop and open shelving above. The living room’s got a wall of floor-to-ceiling windows that face the deck and garden.
The bathrooms aren’t pictured, but the listing, from Nadine Adamson and Kelsey Hall of Brown Harris Stevens, calls them “beautiful and modern.”
Mechanical upgrades include a high-efficiency boiler, a recirculating hot water system, and a split A/C system.
The house — which is showing at open houses from 6-7 p.m. today and 1-2:30 p.m. Sunday — is asking $1.65 million. How do you like it?
[Listing: 82 Pioneer Street | Broker: Brown Harris Stevens] GMAP







Related Stories
- Find Your Dream Home in Brooklyn and Beyond With the New Brownstoner Real Estate
- Massive Brooklyn Heights Greek Revival With Elevator, Jacuzzi, Wine Room Asks $14.15 Million
- Cute Tudor Revival on Bay Ridge Cul-de-Sac Asks $900K
Email tips@brownstoner.com with further comments, questions or tips. Follow Brownstoner on Twitter and Instagram, and like us on Facebook.
What's Your Take? Leave a Comment