Midwood House With Arts and Crafts Mantel, Pocket Doors Asks $2,999,999
Built in the early 20th century as a two-family, this detached dwelling has period details and potential for a buyer to make some upgrades.
Photo via Brisman Realty
The right buyer might see the potential in this Midwood dwelling that was built as a two-family in the early 20th century and still has a bit of interior detail left. The standout detail is an Arts and Crafts style mantel in the upper duplex, but there are wood floors, pocket doors, and a beamed ceiling as well.
At 968 East 10th Street, the house was part of the Midwood Manor development begun in 1908. Historic maps show the surrounding blocks belonged to John H. Schults in the late 19th and early 20th century. His bakery empire allowed him to indulge in his love of horses and the property included stables and a racetrack.
In 1908 developers Wood, Harmon & Co. launched a redevelopment of the land, including roughly 20 blocks. Ads for the project that same year dubbed it Midwood Manor and boasted it would have the latest in public services like sewers, electricity, and phone service as well as landscaped streets. The John R. Corbin Co. built a number but not all of the houses in the development. The houses, sold to “people of refinement,” included one- and two-family dwellings.
This gable-fronted house still retains its triple windows in the peak and its double porches, one per family. There is a hint of the original columns on the second floor porch. Those original Ionic columns, as well as the shingled exterior, can be seen in the circa 1940 tax photo. The first floor porch was still intact in the 1981 tax photo, but now has brick columns.
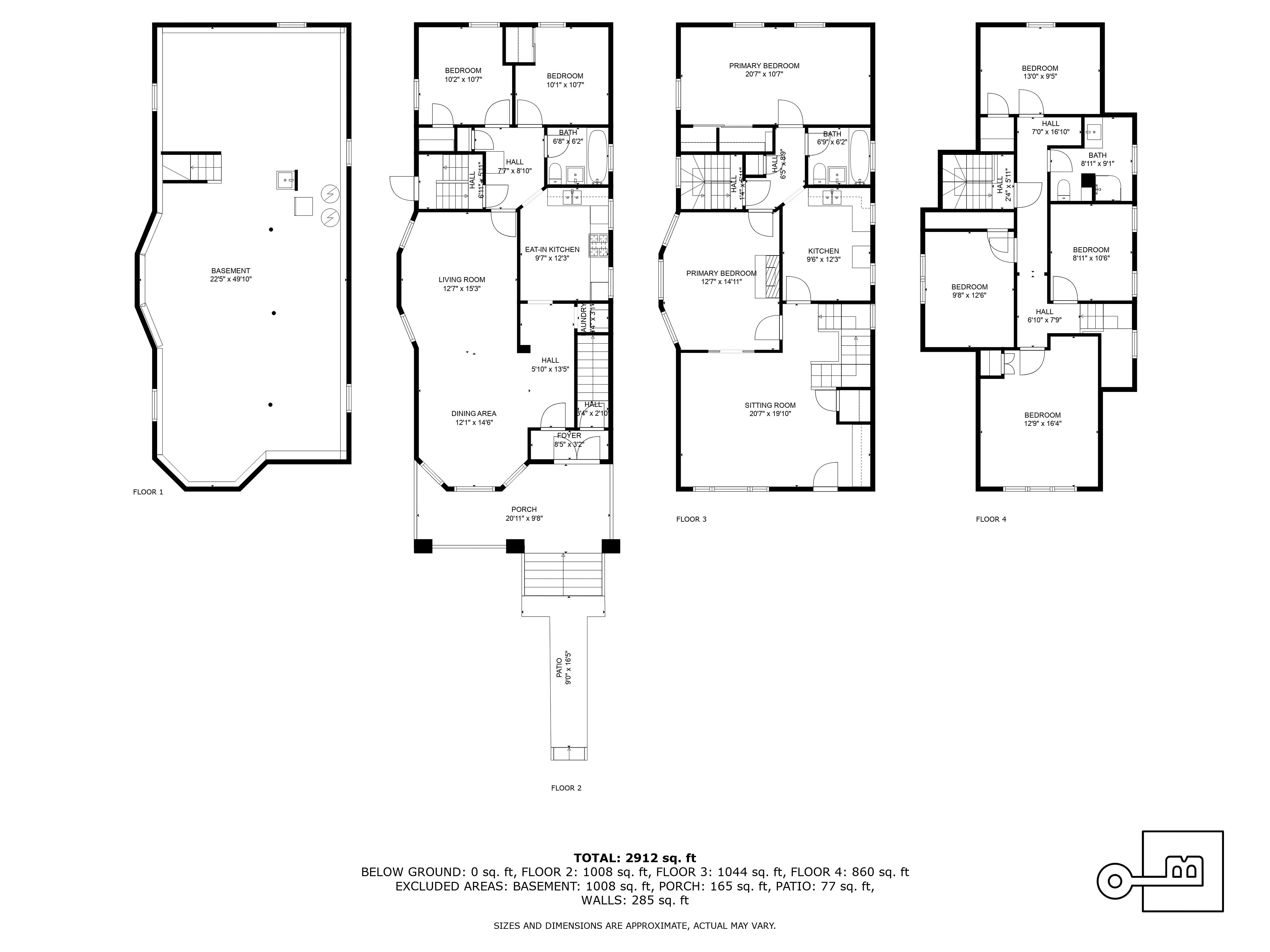
The two units consist of a two-bedroom, one bath apartment on the main level and a duplex above. Both are accessible via the front foyer and a side entrance. While the first floor one has some wood floors, the upper duplex has the most surviving detail in addition to a more generous layout.
The floor plan describes the duplex as having six bedrooms, but that includes the original dining room used as a bedroom. The flexible layout could be set up with a generously sized main floor with living, dining, den, kitchen, and full bath and still have four bedrooms and another full bath on the top floor.
The dining room has the most detail, although it could use a bit of TLC. There are stained glass window inserts in the room’s two doors, both missing a bit of glass, a beamed ceiling, and the wood mantel with original insert.
While the lower unit’s kitchen has white cabinets and white appliances, the kitchen in the upper unit is shown sans appliances. It does have two windows, a tile floor, and white cabinets.
The pictured baths have white fixtures, and two bathrooms have tubs while the top-floor one has a curved shower insert.
The house hasn’t changed hands in decades and there isn’t any mention in the listing about updates to mechanicals, so presumably there might be some work for a new owner.
The listing also doesn’t mention any off-street parking although there is a narrow walkway along each side of the house, and neighbors have created parking spaces in their front yards.
Raizy Brisman of Brisman Realty has the listing, and the property is priced at $2,999,999. Worth the ask?
[Listing: 968 East 10th Street | Broker: Brisman Realty] GMAP















[Photos via Brisman Realty]
Related Stories
- Park Slope Neo-Grec With Mantels, Interior Shutters, Wood Floors Asks $2.995 Million
- Ditmas Park Colonial Revival With Mantels, Parking Asks $2.2 Million
- Cypress Hills Italianate With Marble Mantels, Parking Asks $1.5 Million
Email tips@brownstoner.com with further comments, questions or tips. Follow Brownstoner on X and Instagram, and like us on Facebook.
What's Your Take? Leave a Comment