UpdatedToday
Added11/27/2025
About this Property
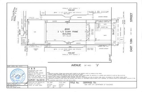
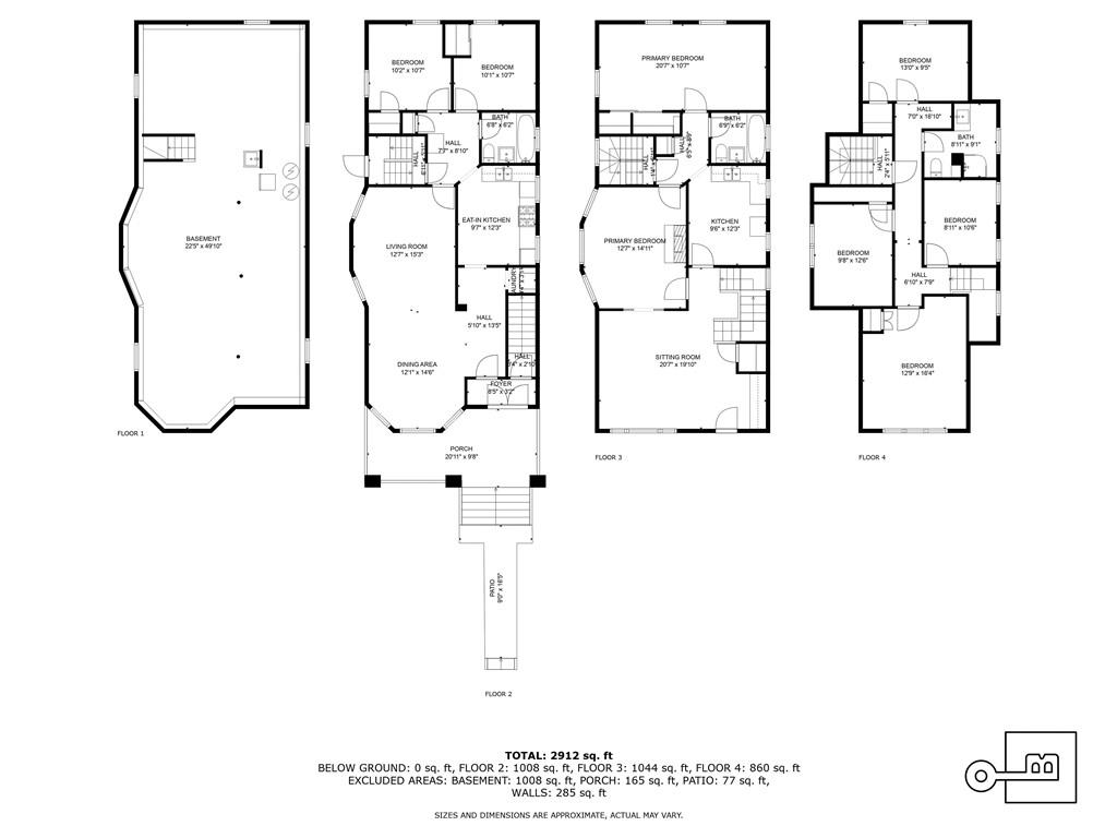
MIDWOOD MANOR!! Excellent location!!! Detached 3 story 2 family Victorian home in Midwood Manor. Take 1 apt for yourself and rent out the 2nd for income or convert to 1 family huge home. This home features large living room/dining room on the 1st floor, kitchen, 2 bedrooms, bath and front porch. 2nd and 3rd floor is a 6-bedroom duplex with large living room/dining room, kitchen, 2 baths and front porch.
Details
  • Status:Active
  • Type:Multi-family
  • ID:7526401
  • Flooring: Parquet
  • Financing Type: 1031 Exchange,Bank Mortgage,Cash
  • Roof Type: Pitched
  • Yard: Back
Learn about this property's history, neighborhood, taxes, schools and more.
Marketproof building overview
Amenities
Location

Copyright © 2026 Brisman Realty. All rights reserved. All information provided by the listing agent/broker is deemed reliable but is not guaranteed and should be independently verified.