Park Slope Limestone Once Home to a Borough President Asks $4.5 Million
Lush interior details have been lovingly cared for.
Photo via Compass
Filled with lush interior details, this Park Slope limestone was also home to a Brooklyn borough president. In addition to the moldings, wainscoting, stained glass, and mantels, the single-family house at 577 4th Street has received modern upgrades, including central air.
Within the Park Slope Historic District, it is one of a row of 16 houses designed by Brooklyn architect Arthur R. Koch for developer Otto Singer. Brownstoner’s Suzanne Spellen described the location as “one of the classiest blocks in Park Slope” with the neo-Classical houses a testament to the talent of the architect. While the details vary along the row, all are richly ornamented.
While Singer mentioned the Indiana limestone fronts and brownstone stoops in his 1908 ad, he saved the bulk of the lengthy copy to detail every interior detail, from the location of the servant’s toilet to the style of the lighting fixtures. On the parlor level, the white and gold front reception room featured “Tuscan columns with Corinthian caps,” while the dining room had a “heavy artistic beam ceiling.” The second floor included two large bedrooms with separate bathrooms while the top floor had three bedrooms — the smallest designated as the maid’s room.
By 1910, No. 544 was home to former Brooklyn Borough President J. Edward Swanstrom, wife Frances, their adult children, and two grandchildren. Swanstrom was the second holder of the office and served from 1902 to 1903, prior to his time on 4th Street. He had a short time in the house, dying from pneumonia in 1911. A memorial meeting held at Brooklyn Borough Hall brought local politicos. A memorial plaque was unveiled in the building in 1912.
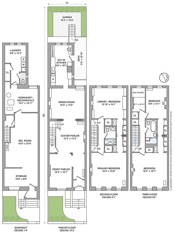
The limestone is still a single family with a kitchen in a rear extension on the parlor level, two floors of bedroom space, and laundry and a rec room on the garden level. There are 2.5 bathrooms in the house.
Details, which appear lovingly cared for, start in the entry, with a wood floor with inlaid border, plasterwork, a ceiling medallion, and wainscoting. Columns frame the door to the front parlor. The room still sports a pier mirror, moldings, and wainscoting.
There’s a mantel in the wood-filled middle parlor along with the grand staircase, and pocket doors into the dining room. There’s a glimpse of another mantel in the dining room along with built-in bookcases along wainscoting, a plate shelf, and the beamed ceiling mentioned in the ads.
A bright yellow backsplash adds color to the kitchen. The room boasts two exposures, wood cabinets, a banquette, and access to a rear deck.
On the second floor are front and rear bedrooms joined by a pass-through with sinks. The street-facing bedroom has walls adorned with blue and white wallpaper and a columned mantel with insert. The full bath has a large glass-doored shower, a marble sink, and stained glass.
Upstairs, another pass-through connects the largest two bedrooms while the petite third bedroom was outfitted with a built-in bed. There’s another full bath, this one with a claw foot tub, a stained glass window, and a pattern of green, black, and white wall tiles.
There is just a glimpse of the rear yard, which has planting beds and a brick-paved patio.
The house hasn’t changed hands since the 1980s. Libby Ryan of The Ryan + Ryan Team of Compass has the listing and the house is priced at $4.5 million. What do you think?
[Listing: 577 4th Street | Broker: Compass] GMAP





















[Photos via Compass]
Related Stories
- Brooklyn Heights Carriage House on Picturesque Mews Asks $5.795 Million
- Unique PLG Neo-Federal With Vaulted Ceiling, Built-ins Asks $2.45 Million
- Wood Frame With Evocatively Worn Interior Asks $4.9 Million in Brooklyn Heights
Email tips@brownstoner.com with further comments, questions or tips. Follow Brownstoner on X and Instagram, and like us on Facebook.
What's Your Take? Leave a Comment