Furnished Bed Stuy Duplex With Woodwork, Garden Asks $4,975 a Month
The rental has many original features, including mantels, a built-in sideboard, and wood-burning stove, along with modern updates.
Photo via Compass
Remarkable for the sheer amount of original detail it contains, a furnished two-bedroom, 1.5-bath duplex for rent in Bed Stuy also has modern updates and a garden. The circa 1890s light colored stone building is part of an eclectic Queen Anne-Renaissance Revival row with angled bays, arched windows, stained glass, and terra-cotta ornament.
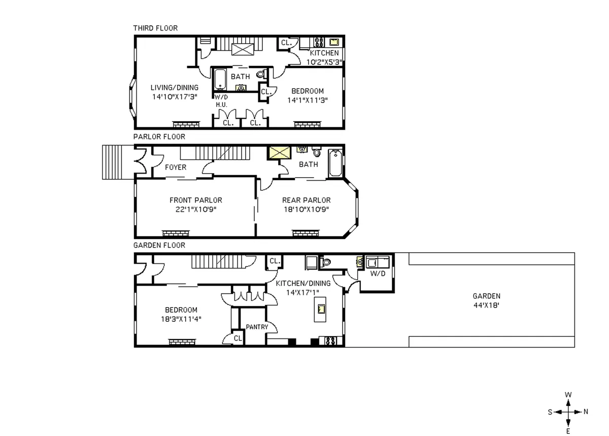
Built as a single-family, 493 Decatur Street is now a legal two-family comprising a top-floor apartment over a garden and parlor floor duplex. The original floor plan is largely intact, and listing photos show the garden-floor dining room and the front parlor in use as bedrooms.
Original details include wainscoting, shutters, stained glass windows, built-ins, three wood mantels with original tile with puddly glazes, wood floors, fretwork, and even the original cast iron wood-burning stove in the kitchen. The latter is now decorative and topped with a butcher block counter.
An island has space for seating, and there is an original dish cupboard. The pass-through retains its built-ins, according to the listing, and a walk-in pantry is lined with shelves. There is also a half bath on this level, along with a laundry room with top loader and fully vented dryer.
The full bathroom on the parlor floor, accessed from the hall or via pocket doors from the rear parlor, has been recently updated with a deep soaking tub, separate step-in shower, and black and white tile floor.
The front parlor has all its woodwork and crown moldings in place, along with recessed lighting. A fretwork screen over a doorway leads to the entry. The rear parlor is similarly intact, and both have stained glass windows and mantels.
In the backyard, accessed via the laundry room/mudroom on the garden floor, planting beds ring a patio in the backyard dotted with outdoor furniture. On the interior, furnishings are mostly limited to bedrooms and kitchen equipment, going by the photos.
City records show the property has been in the same family for decades. Listed by Pamela Renai Young of Compass, the rental is asking $4,975 a month. Worth it?
[Listing: 493 Decatur Street, Unit 1 | Broker: Compass] GMAP
















Related Stories
- Park Slope Brownstone Unit With Two Bedrooms, Mantels Asks $4,500 a Month
- Midwood Studio With Dressing Room, Deco Details Asks $1,950 a Month
- Windsor Terrace Rental With Two Bedrooms, Woodwork Asks $3,800
Email tips@brownstoner.com with further comments, questions or tips. Follow Brownstoner on X and Instagram, and like us on Facebook.
What's Your Take? Leave a Comment