Green-Wood Cemetery Opens Long-Awaited Visitor Center
The Green-House at Green-Wood invites visitors to learn about Green-Wood Cemetery’s history and “permanent residents” while exploring a restored Weir Greenhouse.
The new facility will open to the public this week. Photo by Susan De Vries
Since the late 19th century, the Victorian glass-and-copper greenhouse has been a jewel on the corner of 5th Avenue and 25th Street in Sunset Park, known for its eye-catching onion dome and iconic mesh signage. But by the 2010s, the future of the deteriorating structure — with its frame failing, window panes missing, and plants long gone — seemed less than secure.
That was until a friendly neighbor, adept at both burying the dead and resurrecting historic structures, stepped in. In 2012, Green-Wood Cemetery, located across the street from the individually landmarked greenhouse, purchased the building at 750 5th Avenue for $1.625 million from McGovern Florists. The cemetery has restored the historic structure and made it the centerpiece of its new visitor center, which opens this weekend.
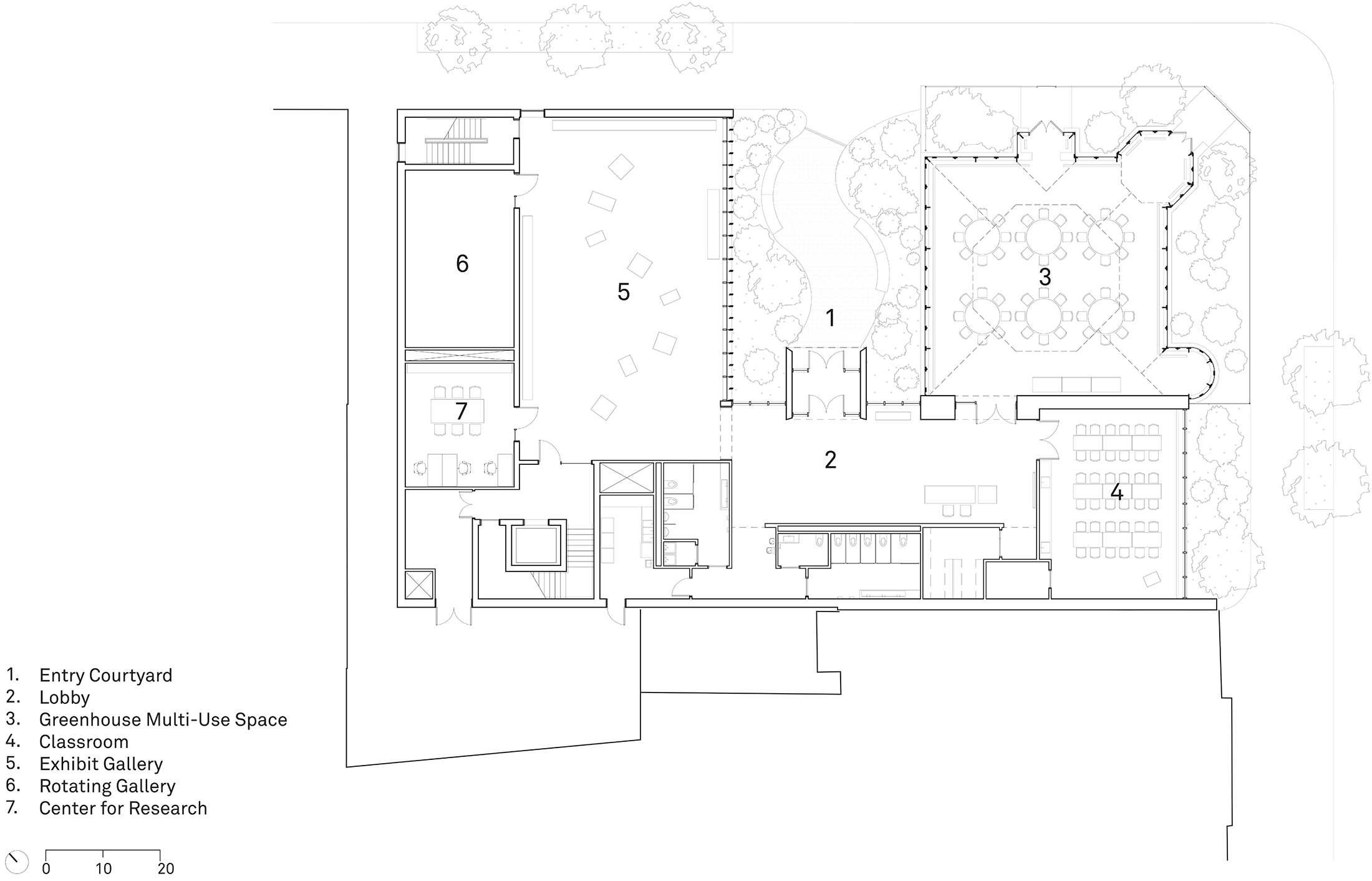
In the works for over a decade, the $43 million project includes the rehabilitated Weir Greenhouse and a new L-shaped, terra-cotta-clad building that wraps around it. Designed by Architecture Research Office, the 19,200-square-foot building is an orientation point for visitors and a hub for programming, exhibitions, research, and Green-Wood’s staff.



Lisa Alpert, senior vice president of development and external relations at Green-Wood, said the project was driven by three main needs: to create a welcoming entry point outside the cemetery gates; provide a place where the more than 500,000 annual visitors can learn about the cemetery and its hundreds of thousands of “permanent residents”; and to establish a year-round home for educational and community programming (which includes visits from around 10,000 school kids each year), that typically comes “to a screeching halt around November 1.”
The corner site of the visitor center has long been part of the cemetery ecosystem, with the greenhouse vending flowers to visitors and a now-demolished building next door selling monuments.
“It’s not like we’re a museum opening another wing,” Alpert said. “We are a cemetery opening a visitor center, which is sort of unheard of.”
She said the center was a place for both longstanding visitors and folks more unsure about the etiquette of visiting a cemetery. “As an institution, we know so much about this place and so much about the people who are buried here, and we’re not sharing, we just didn’t have a place for us to impart those stories and share them. So we want to cater to the people who are coming, but also the people who have never come here at all.”


The new building includes exhibition galleries, classroom space, climate controlled archival storage, space for community events, and offices for Green-Wood staff, as well as restrooms and seating. On weekends, there will be a place to buy flowers. There are also plans in the works for some form of food option — in the meantime there is Baked in Brooklyn next door.
The restored bright green greenhouse remains the focal point against the modern two-story addition’s glass and burgundy-glazed terra cotta facade, tying in to the color palette of the cemetery’s sculptural brownstone entryway arches.
To enter the new space, visitors cross a landscaped courtyard from 25th Street, designed by Michael Van Valkenburgh Associates, that extends Green-Wood’s greenery beyond its gates by echoing the cemetery’s winding paths. The courtyard separates the historic structure from the two-story wing. A one-story glass wing, which includes the lobby and classroom space, connects the greenhouse to the larger building. That single-story section is topped with a sculpted green roof with rolling hills.


The Weir Greenhouse itself was carefully dismantled and reconstructed with a new floor, HVAC system, and a replica of its distinctive Weir sign. Inside, there is a large tile map of the cemetery on the greenhouse floor offering an interactive element for the many activities planned for the space: classes, school groups, film screenings, community events, weddings.
The entire building was designed with flexibility in mind given the range of programming Green-Wood offers, which includes concerts, art installations, birdwatching events, job training, and beyond.
Going through to the main exhibition room, visitors can get a feel both for the cemetery’s extensive history in the borough and its role in the rural cemetery movement in the United States. (Famously it was second only to Niagara Falls in attracting visitors in the 1860s.) A selection of objects that line the walls and are held in small tomb-like structures represents some of the cemetery’s 580,000 “permanent residents,” from Jean-Michel Basquiat — who holds the title for most visited grave — to Boss Tweed.
Branching off the main exhibition room is a gallery space that will have rotating exhibitions, with an opening piece by artist Jean Shin. There is also a research room, where, for the first time, Green-Wood’s archives will be available to visitors.



The second floor includes office space for Green-Wood staff, with furniture made from wood reclaimed from the cemetery. It looks over the greenhouse to the cemetery’s 1865 Gothic Revival entrance gate, designed by Richard Upjohn.
At the time of Green-Wood’s creation in 1838, the concept of a cemetery as a place for both the living and the dead was revolutionary. Just shy of two centuries later, the new visitor center digs into that belief while also staying true to the space as a sacred escape into nature and out of the urbanism of the city, avoiding QR codes and excessive signage on the grounds.
ARO principals Kim Yao and Stephen Cassell stressed how the new center allows Green-Wood to share its history without altering the cemetery landscape itself. Instead, visitors can stop in before or after their cemetery visit.
The building sits directly across from Green-Wood’s double-arched entrance gate. The pair said the goal was to echo the experience of entering the cemetery by surrounding visitors with greenery as they approach the building. Materials were chosen to complement the historic greenhouse and brownstone entryway, and sightlines from inside the new building were key to the project.

While the New York City Landmarks Preservation Commission approved the greenhouse restoration in 2015, the full visitor center design was not approved until 2021. The project received a boost from $4.5 million in city funding in 2022, followed by an additional $500,000 in state funding in 2023.
To mark the opening this Saturday, the cemetery will host a series of free programs, including a workshop with artist Jean Shin and a native wildflower planting event. Visitors can also take guided tours of the archives and view selected documents and objects.
The visitor center, which is free to enter, will initially be open Thursday through Monday from 10 a.m. till 7 p.m. with hours potentially expanding based on demand.


Related Stories
- Long-Awaited Green-Wood Cemetery Visitor Center to Open in April
- Green-Wood Cemetery Visitor Center Revealed as Construction Fence Comes Down
- Restored Weir Greenhouse Revealed as Prep Begins for Green-Wood Visitor Center Construction
Email tips@brownstoner.com with further comments, questions or tips. Follow Brownstoner on Twitter and Instagram, and like us on Facebook.
What's Your Take? Leave a Comment