Crown Heights Digs With Pier Mirror, Mantel, in-Unit Laundry Asks $6,950
The parlor-floor rental has details like plasterwork, wainscoting, and stained glass along with updates including central air.
Photo via Corcoran
There are some fairly lush details inside this Crown Heights rental on the parlor floor of an 1890s row house. Plasterwork, wainscoting, moldings, a mantel, stained glass, and a pier mirror are all to be found in the two-bedroom, 1.5-bath unit. At 896 Park Place, the row house is a short walk away from the Brooklyn Children’s Museum and Brower Park.
Within the Crown Heights North II Historic District, the house is one of a row of seven Neo-Gothic dwellings designed by Axel S. Hedman for owner George F. Beatty. Plans were filed in 1896 and by 1899 Beatty was advertising the houses with “artistic stone fronts” as having the latest amenities including electric lights and hardwood finishes. No. 896 sold that year to Charles N. and Eva W. Kreiser, and the couple lived in the then single-family house through the mid 1920s.
In the 1950s the house was converted to a rooming house with nine furnished rooms and one apartment. A final certificate of occupancy issued in 2020 shows the row house now has five apartments.
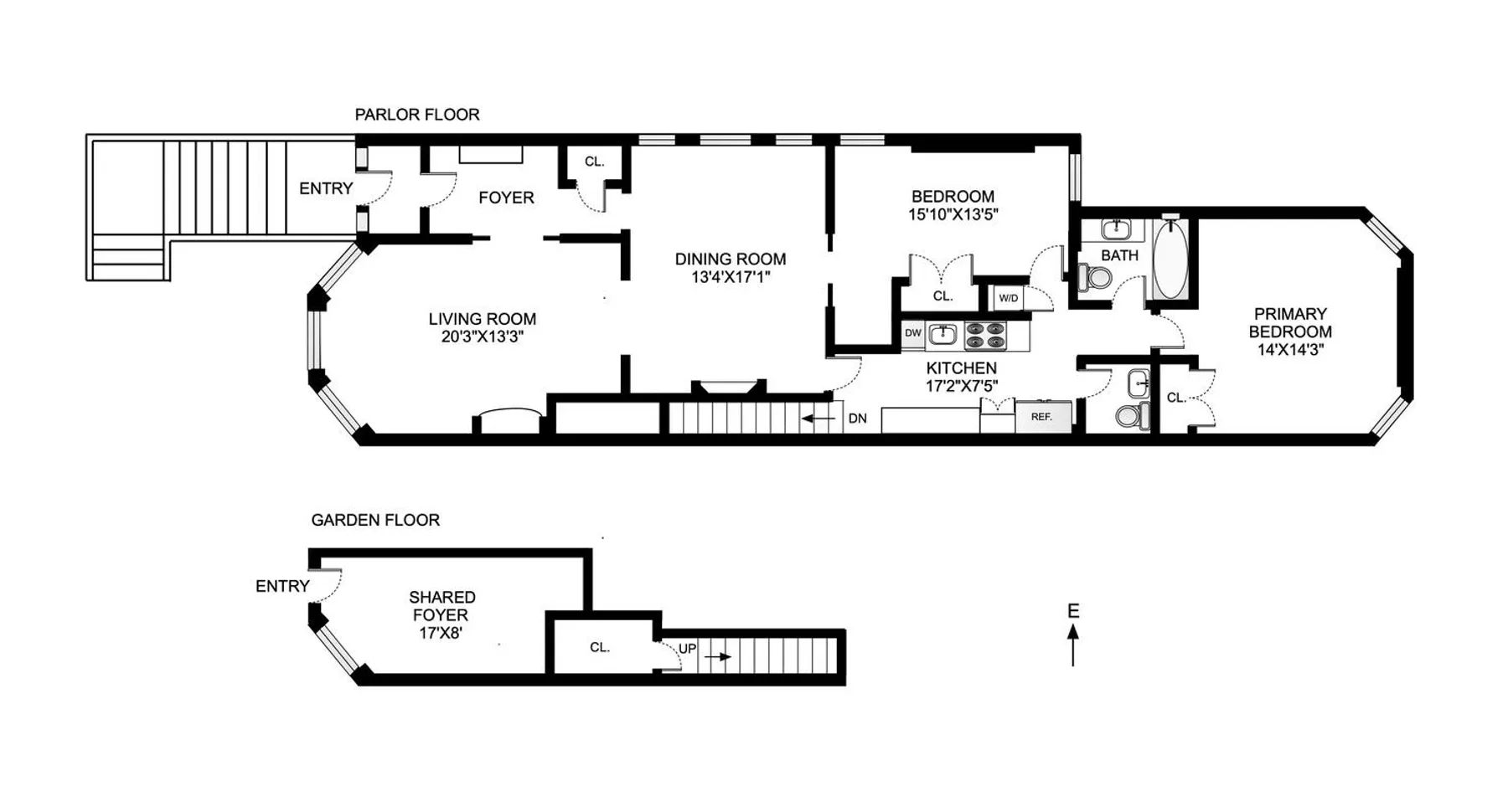
This parlor level unit comprises living and dining in the front of the apartment and two bedrooms and the bathrooms at the rear. There is a galley kitchen and a closet that holds the laundry.
In the front parlor, the impressive plasterwork on the ceiling is still in place along with the aforementioned pier mirror, moldings, and a fretwork screen framing the doorway to the dining room. The wainscoting-covered bump-out visible in the listing photos provides headroom for the staircase that descends from the kitchen and terminates in a closet, the floor plan shows.
A mantel with a mirror, original insert, and tile surround is in the dining room along with a coffered ceiling, stained glass, and wainscoting. A vent is visible near the ceiling; the unit has central air. Pocket doors open to one of the bedrooms which could be used as an office space or den if a renter wants to set the unit up as a grand one-bedroom.
The galley kitchen has been updated with white cabinets, marble counters, and a dishwasher. The kitchen also functions as a hallway to the bedrooms and both bathrooms.
While most of the walls in the apartment are painted white, the rear bedroom has a jolt of color with bright blue walls and trim. Some plasterwork survived here and the room has a closet.
The unit has access to a shared foyer on the garden level and designated stroller parking. Dogs are not permitted.
Listed by Kelly Neinast and Kristin Neinast of Corcoran, the apartment is priced at $6,950 a month. Worth the ask?
[Listing: 896 Park Place, Parlor | Broker: Corcoran] GMAP











[Photos via Corcoran]
Related Stories
- Kensington One-Bedroom With Renovated Kitchen Asks $2,950 a Month
- Clinton Hill House With Porch, Annabelle Selldorf Reno Asks $17K
- Cobble Hill Prewar With High Ceilings, Built-in, Wood Floors Asks $3,800
Email tips@brownstoner.com with further comments, questions or tips. Follow Brownstoner on X and Instagram, and like us on Facebook.
What's Your Take? Leave a Comment