UpdatedToday
Added12 Days Ago
Added12 Days Ago
Active
About this Property
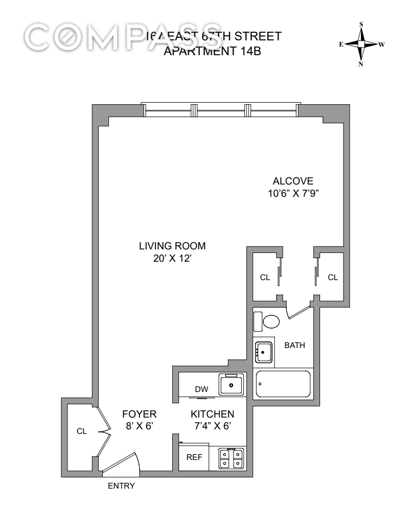
Welcome to Residence 14B at 167 East 67th Street — a bright and spacious alcove studio in the heart of the Upper East Side.
Perched on a high floor with desirable southern exposure, this oversized studio is filled with natural light throughout the day thanks to a full wall of windows that frame open city views.
The thoughtfully designed alcove layout easily accommodates a queen-sized sleeping area while still providing generous space for both living and dining. The expansive living area allows for comfortable lounge seating, a dining table, and even a dedicated work-from-home setup.
The renovated kitchen features sleek stainless steel appliances, modern finishes, and efficient storage, making it equally suited for everyday cooking or entertaining guests. Storage is abundant throughout the apartment, offering practical solutions rarely found in typical studio layouts.
167 East 67th Street is a well-maintained full-service cooperative featuring a full-time doorman, laundry room, storage, and bike room. Ideally located between Lexington and Third Avenue, the building sits just moments from the 6 train, crosstown buses, and some of the Upper East Side’s best restaurants, shopping, and neighborhood conveniences.
Residence 14B offers the perfect combination of light, space, and location — an exceptional opportunity to own a bright Upper East Side home.
In-unit washer/dryers are permitted with board approval.
Details
- Status:Active
- ID:366042
- Monthly Fees:$ 1237
Learn about this property's history, neighborhood, taxes, schools and more.
Location
Copyright © 2026 Compass. All rights reserved. All information provided by the listing agent/broker is deemed reliable but is not guaranteed and should be independently verified.
Monthly Fee:$1,237
1
BA
0BD