Updated8/15/2024
Added6/25/2024

14246 Sanford Ave

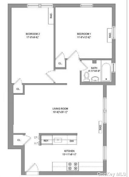
About this Property
This modern two-bedroom apartment is located in the most bustling area of Flushing , right next to restaurants, supermarket, bus stops, and the subway. Don't miss out on this opportunity! No parking space available, street parking only.
Details
  • Status:No Longer Available
  • Type:Condo
  • ID:2530749
Learn about this property's history, neighborhood, taxes, schools and more.
Marketproof building overview
Location

Copyright © 2026 Compass. All rights reserved. All information provided by the listing agent/broker is deemed reliable but is not guaranteed and should be independently verified.