Updated8 Days Ago
Added24 Days Ago
Added24 Days Ago
Active
About this Property
Bring your architect and create a bespoke Park Avenue residence.
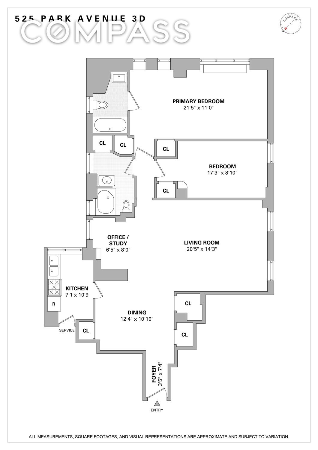
Located in the distinguished pre-war condominium at 525 Park Avenue, Apartment 3D offers a rare opportunity to design a custom home in one of Manhattan’s most prestigious addresses. With approximately 10-foot ceilings, gracious proportions, and a versatile layout allowing for an array of living configurations, the apartment presents an exceptional canvas for a full-scale renovation.
A gracious entry foyer opens into a large 20-foot living room and a separate formal dining space, ideal for entertaining. There is also a separate office/study space off the living room. The windowed kitchen is positioned just off the dining space and includes a secondary service entrance, offering excellent potential for a dramatic chef’s kitchen or one could open kitchen to dining for an eat-in design option. The private bedroom wing includes a spacious primary bedroom measuring over 21 feet in length, along with a sizable second bedroom that can easily serve as a guest room or proper library. Two full bathrooms and abundant closet space throughout further enhance the home’s functionality and flexibility.
Designed in 1915 by the renowned architectural firm Schwartz & Gross in the elegant Italian Palazzo style, 525 Park Avenue is a full-service pre-war condominium offering white-glove amenities including a full-time doorman, concierge, live-in resident manager, fitness center, and private storage.
Ideally located at Park Avenue and 61st Street, the building sits moments from Central Park and the luxury boutiques and renowned dining along Madison and Fifth Avenues. The nearby Equinox 61st Street offers additional wellness facilities including a pool, and two parking garages are conveniently located within a block.
With flexible ownership allowing financing, LLCs, and trusts, Residence 3D presents a rare opportunity to craft a timeless Park Avenue home tailored entirely to your vision.
Note, photos have been virtually white-washed and emptied to show space and scale of rooms.
Details
- Status:Active
- Size:1234 Sq Ft
- Type:Condo
- ID:2170322
- Tax:$ 1123
- Monthly Fees:$ 2525
Learn about this property's history, neighborhood, taxes, schools and more.
Amenities
Location
Copyright © 2026 Compass. All rights reserved. All information provided by the listing agent/broker is deemed reliable but is not guaranteed and should be independently verified.
Tax:$1,123
Common Charges:$2,525
2
BA
2 BD