Updated55 Days Ago
Added10/22/2025
About this Property
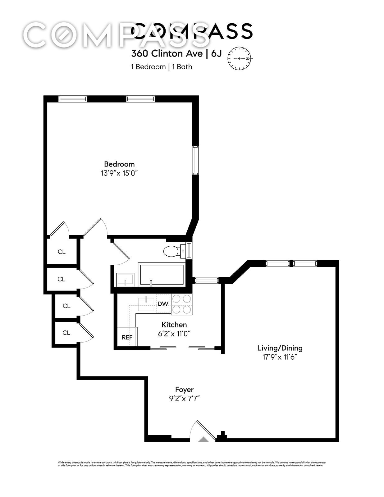
Welcome home to Apartment 6J, where classic Clinton Hill charm meets modern sophistication. This oversized one-bedroom, one-bathroom co-op is filled with sunlight, style, and thoughtful updates throughout. The spacious entry foyer immediately sets the tone for the apartment’s open, airy feel. The beautifully renovated kitchen makes the most of every inch, featuring smart custom storage, premium finishes, and elegant sliding glass doors that create a perfect balance between flow and separation. From here, enjoy stunning city views that remind you you’re right in the heart of Brooklyn. The expansive living area easily accommodates both a dining table and comfortable seating — ideal for entertaining or quiet evenings at home. Down the hall, a wall of three large closets provides abundant storage. The windowed bathroom has been beautifully renovated, blending sophistication with simple, timeless design. The king-sized bedroom, with three sun-filled windows, is a true retreat offering peaceful views and plenty of space to unwind. 360 Clinton Avenue is a 96-unit, pet-friendly co-op known for its stately white portico entry and grand lobby. Amenities include a live-in superintendent, full-time porter, common laundry, bike storage, rentable storage cages, and two landscaped courtyards with community planting beds for urban gardening. The building also features modern conveniences such as a ButterflyMX video intercom and Package Concierge system. Perfectly positioned at the crossroads of Clinton Hill and Fort Greene, you’re surrounded by some of Brooklyn’s best dining, boutique shopping, and cultural landmarks — including BAM, Barclays Center, Mark Morris Dance Center, and the Paramount Theatre. With the C and G trains just moments away, plus the Atlantic Terminal transit hub nearby, getting anywhere — from Manhattan to Montauk — is effortless. On weekends, stroll to Fort Greene Park, where the neighborhood comes alive with live jazz, storytellers, and a beloved farmers market. Apartment 6J is the ideal blend of space, style, and location — a true Clinton Hill gem waiting to welcome you home.
Details
  • Status:No Longer Available
  • ID:1955848198463275441
  • Monthly Fees:$ 1000
Learn about this property's history, neighborhood, taxes, schools and more.
Marketproof building overview
Location

Copyright © 2026 Compass. All rights reserved. All information provided by the listing agent/broker is deemed reliable but is not guaranteed and should be independently verified.