UpdatedThis Week
Added9/19/2025
About this Property
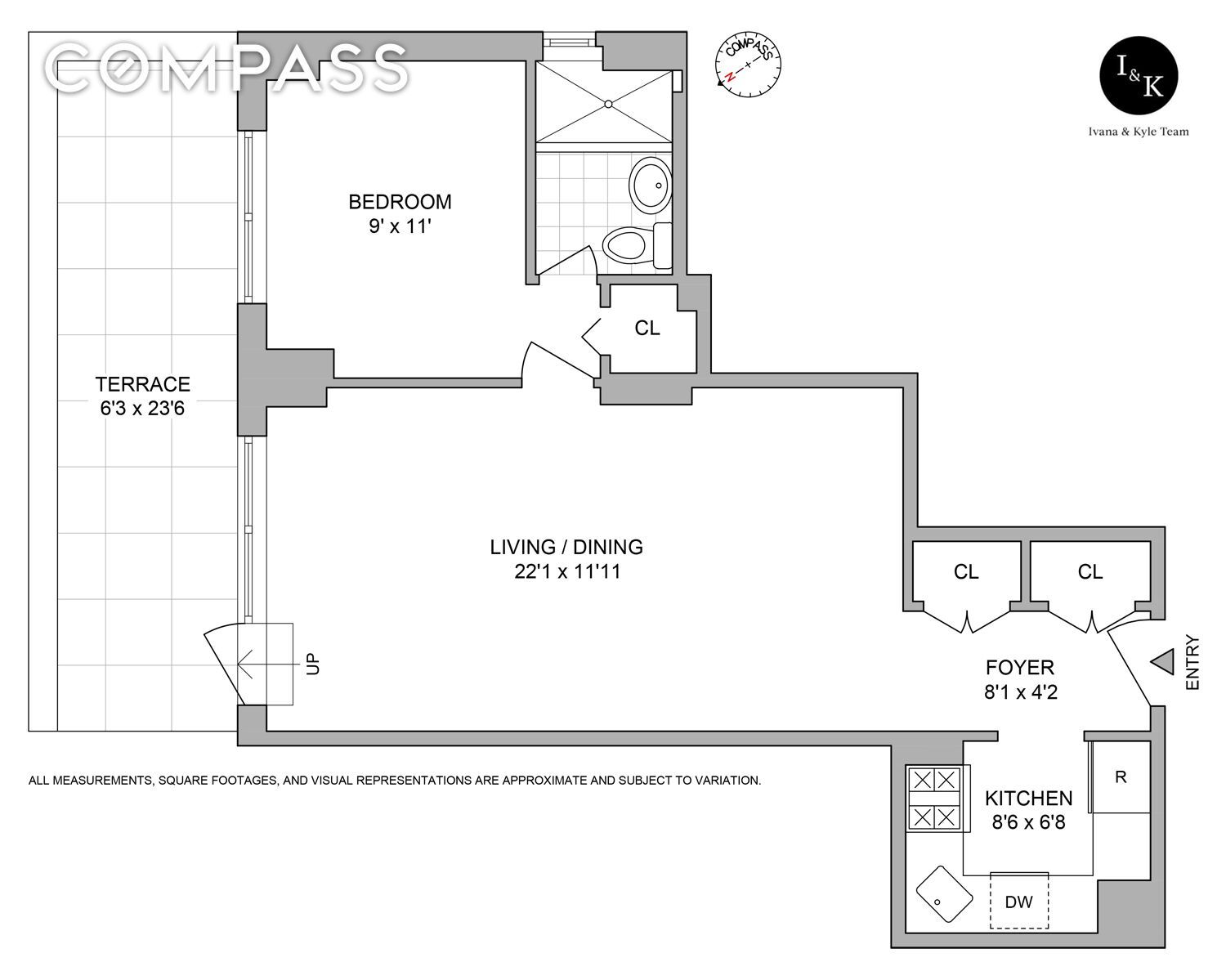
Enjoy iconic NYC views on your private terrace! Spanning the entire width of the apartment and offering views to north and east, this large open terrace is your additional living and dining area in the warmer months of the year. Inside you'll find the apartments own spacious living and dining area spanning over 22' in length. The kitchen features granite counters and great storage in the large and efficient layout. The tiled bathroom has a windowed walk-in shower. Come see this light filled apartment and make it your own! Built in 1964 this well-maintained post-war building is tucked away on a quiet cul-de-sac and minutes to Gramercy, Flatiron, Madison Sq Park. The common areas are impressive, with a spacious lobby, four modern elevators and renovated laundry room. The professionally managed building also boasts exceptional services, including doormen, concierge, valet, porters. While the laundry room is expansive, w/d are permitted with Board approval. On-site parking garage with a very reasonable rate for residents. Pied-a-terres are allowed are as co-purchasing and subletting, all with Board approval. Pets are allowed, please reach out for the pet policy. Assessment of $99.88/mo until December. Some images are virtually staged.
Details
  • Status:Active
  • ID:1932716570954359585
  • Monthly Fees:$ 1973
Learn about this property's history, neighborhood, taxes, schools and more.
Marketproof building overview
Location

Copyright © 2026 Compass. All rights reserved. All information provided by the listing agent/broker is deemed reliable but is not guaranteed and should be independently verified.