Active
No Longer Available
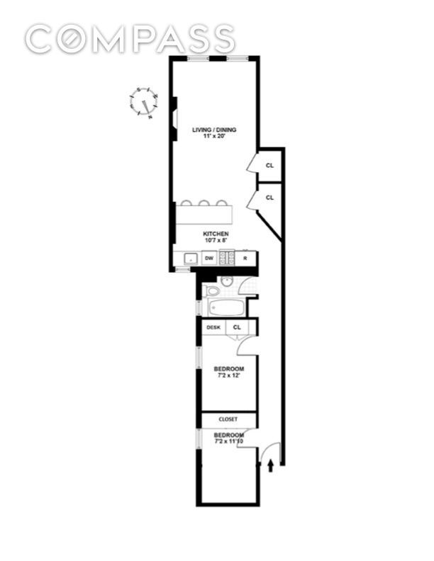
About this Property
Charming top floor two bedroom available for sale in Prime Chelsea!
Situated on the top floor of a lovely pre-war coop with elevator, this home features lovely pre-war features like high ceilings, exposed brick walls, decorative fireplace, hardwood floors, and period moldings.
The living room faces South overlooking tree-lined W 21st Street and gets great southern light from oversized windows. The large, open, windowed kitchen features plenty of storage and lovely marble countertops. The bathroom is also windowed and clad in classic white subway tile.
Additional features of the home include great storage, as well as a gracious long entry hall perfect for art. A private storage cage in the building’s basement is also included.
223-231 W 21st Street is a beautifully maintained boutique pre-war co-op originally built in 1899. Common amenities include a live-in resident manager, central laundry, bike storage, and an upgraded video intercom system operable remotely by an app on your phone. Co-purchasing, gifting, pied-a-terres, and guarantors are considered with board approval. The co-op permits cats but no dogs.
Located in central prime Chelsea, close to Trader Joe’s, Whole Foods, countless shops and restaurants, and all modes of major transportation.
Details
- Status:No Longer Available
- ID:1929201192881798905
- Monthly Fees:$ 1585
Learn about this property's history, neighborhood, taxes, schools and more.
Amenities
Location
Copyright © 2026 Compass. All rights reserved. All information provided by the listing agent/broker is deemed reliable but is not guaranteed and should be independently verified.
Monthly Fee:$1,585
1
BA
2 BD