UpdatedThis Week
Added9/2/2025
Added9/2/2025
Active
About this Property
BEST PRICE PER SQUARE FOOT IN THE BUILDING!
Welcome to Residence 21B – A Sophisticated Upper East Side Haven with Iconic Skyline Views
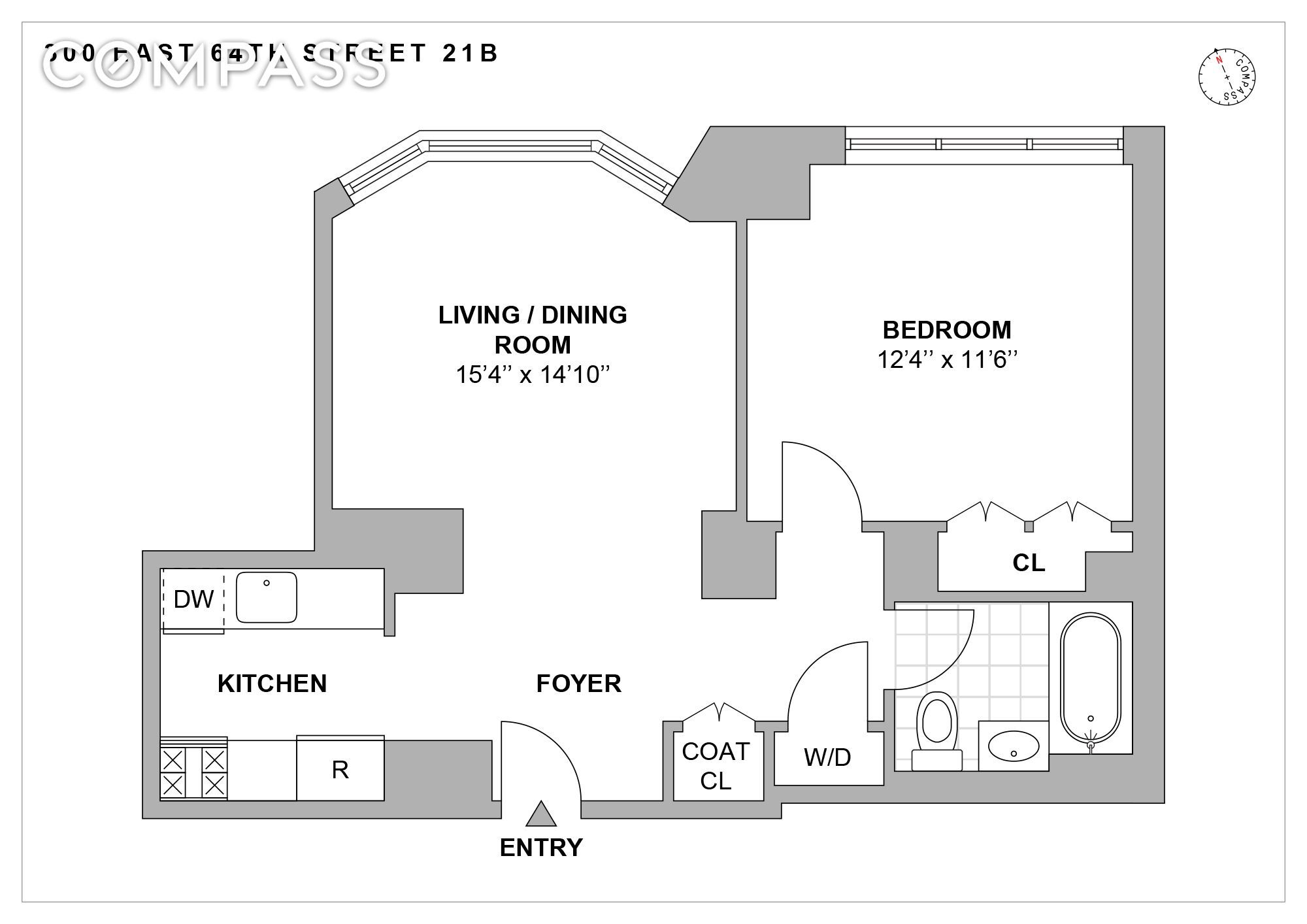
This bright and elegant one-bedroom, one-bathroom home offers an exceptional living experience high above the city. Floor-to-ceiling windows showcase sweeping, unobstructed northern views, infusing the space with natural light throughout the day.
Designed for both comfort and style, the thoughtfully proportioned layout features an expansive living and dining area—perfect for entertaining or relaxing in refined comfort. The modern kitchen is appointed with premium Bosch appliances, a Liebherr refrigerator, Grohe Ladylux Chrome fixtures, and a sleek integrated dishwasher—ideal for the urban gourmet.
The serene bedroom comfortably accommodates a king-sized bed and features generous closet space and a large picture window with calming northern exposures. The spa-like bathroom is finished in luxurious Turkish Calacatta marble and accented with Grohe fixtures. Additional highlights include in-unit washer/dryer, wide-plank oak flooring, and central HVAC.
Residents of this meticulously renovated building enjoy a comprehensive suite of amenities, including a beautifully landscaped rooftop terrace with grilling station and wet bar, state-of-the-art fitness center and yoga studio, media room, library lounge, treatment room, and full-service laundry facilities.
Situated in the heart of the Upper East Side, Lenox Hill is one of Manhattan’s most coveted residential enclaves. Known for its tree-lined streets, classic architecture, and proximity to Central Park, this elegant neighborhood offers easy access to fine dining, world-class museums, luxury shopping along Madison Avenue, and some of the city’s top private schools and medical institutions.
Bulk Cable Charge- $62.43
Details
- Status:Active
- Size:636 Sq Ft
- Type:Condo
- ID:1896387549741206585
- Tax:$ 1322
- Monthly Fees:$ 1047
Learn about this property's history, neighborhood, taxes, schools and more.
Location
Copyright © 2026 Compass. All rights reserved. All information provided by the listing agent/broker is deemed reliable but is not guaranteed and should be independently verified.
Tax:$1,322
Common Charges:$1,047
1
BA
1 BD