Updated60 Days Ago
Added5/7/2025
Added5/7/2025
About this Property
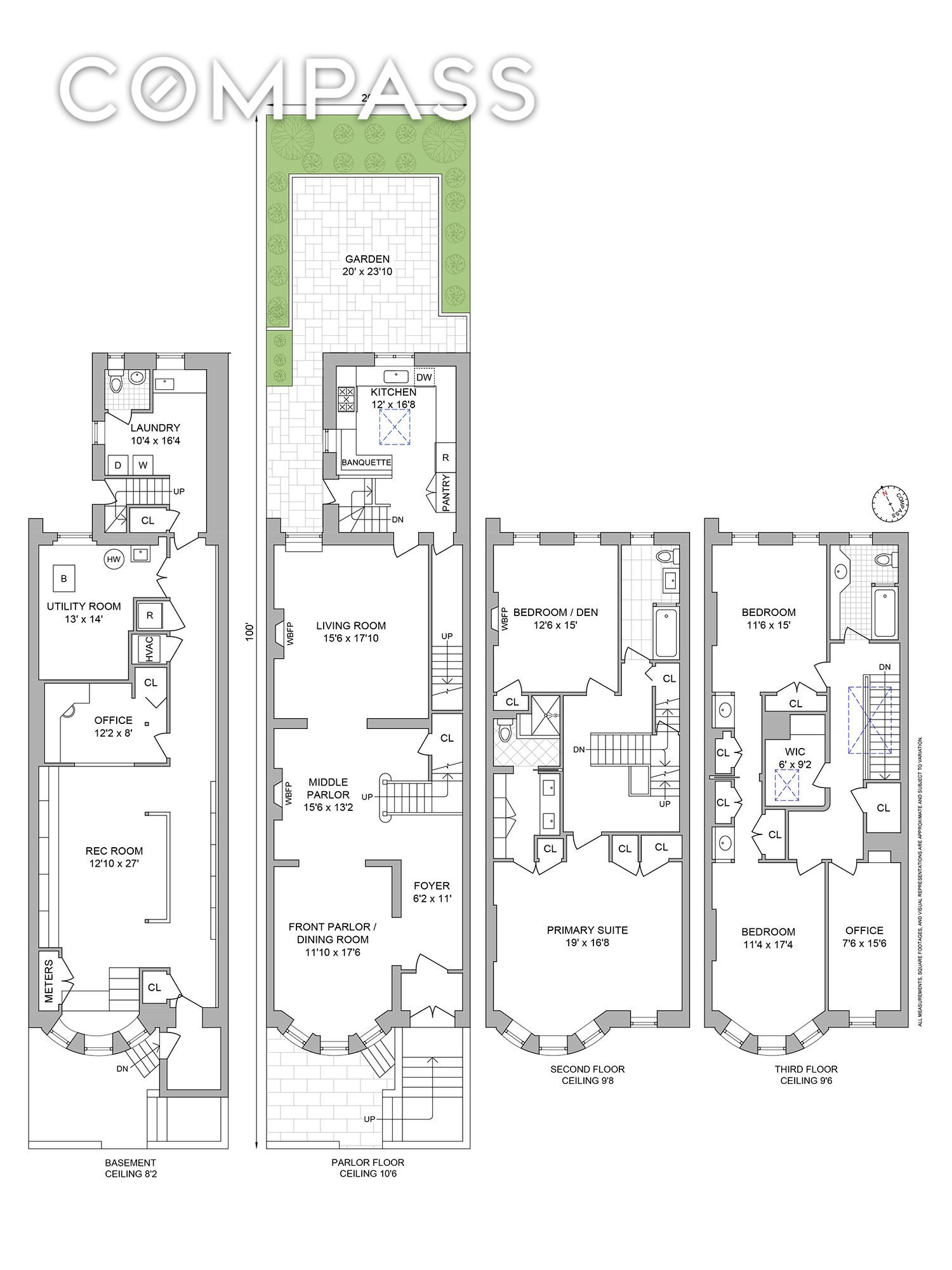
Imagine the Park Slope townhouse that answers all your dreams, with no compromises. *Single-family *20’ wide *Park block location *Central air conditioning *Mature garden *Renovated kitchen and baths *Original floors and details *PS 321 *Move-in condition
Built in 1902, the limestone facade gleams and invites you up a rebuilt stoop. The parlor floor offers a formal dining room with a bay window, a center parlor with a gas fireplace, a large living room with a wood-burning fireplace, and a spacious, renovated kitchen overlooking the garden. Original parquet floors have been restored, and every window on this floor has been replaced. Up the center staircase, with its beautiful woodwork, you will find a south-facing primary suite, also with a bay window. The bath was completed less than 2 years ago and features heated floors and marble surfaces. In the rear of the house is another bedroom (currently used as a den) with a wood-burning fireplace and another full bath. The windows in the primary bedroom have been replaced. The top floor features two large bedrooms, an office/nursery, and a full bathroom. Skylights flood this floor with natural light. Front-facing windows have been replaced. Below the parlor floor is an English basement. It has been renovated to provide a large TV room/play room, an office, a laundry room, and a powder room. Access is from the kitchen or from outside, under the stoop.
Improvements to this lovely home include: *New roof 2019 *Waterproofing in front and back of the house *3 zone CAC - basement, parlor floor, and two bedroom floors *Bluestone pavers in front *Stoop rebuilt *Heated floors in the kitchen and primary bath *Replacement windows in front of the house, dining room, and kitchen
Details
- Status:No Longer Available
- Size:4696 Sq Ft
- Type:Townhouse
- ID:1835587518963229281
- Tax:$ 16488
Learn about this property's history, neighborhood, taxes, schools and more.
Amenities
Location
Copyright © 2026 Compass. All rights reserved. All information provided by the listing agent/broker is deemed reliable but is not guaranteed and should be independently verified.
Tax:$16,488
3.5
BA
5 BD