Updated8/15/2025
Added5/16/2025
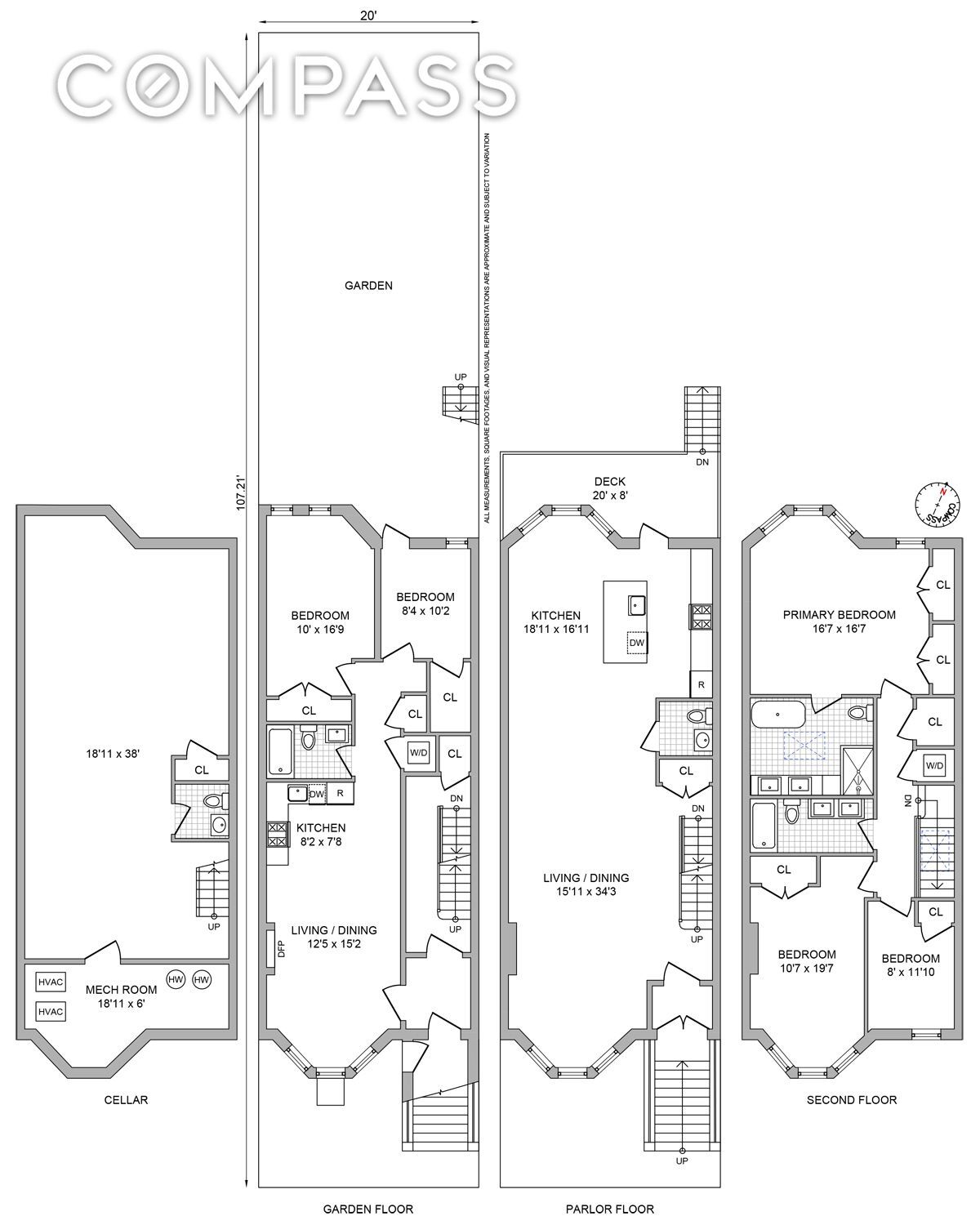
About this Property
1349 Bergen Street, built circa 1901, is a grand and meticulously renovated townhouse offering the perfect blend of historic elegance and modern functionality. Spanning approximately 3,550 square feet across three stories and a full cellar, this two-family home has been thoughtfully updated while preserving some of its rich detail. From the moment you enter, the home impresses with soaring ceilings, gleaming hardwood floors, original details, and an extended 50 feet long parlor floor that anchors the space with classic charm. Modern upgrades, including central air conditioning and an upgraded electrical system, ensure comfort and efficiency throughout. The owner's three-bedroom, two full bath, two half bath duplex is designed for both luxurious living and effortless entertaining. At its heart is a stunning chef’s kitchen with quartz countertops, custom cabinetry, and high-end appliances including a Wolf stove, Fisher & Paykel double-door fridge, wine cooler and a microwave drawer. A full-glass door looks out onto the rear deck, perfect for al fresco dining or relaxing in the privacy of your serene backyard. Upstairs, facing the backyard, the primary suite offers a peaceful retreat with large double closets and a spa-like en-suite bathroom. Two additional bedrooms, a second full bathroom with soaking tub, and a convenient laundry closet, complete the top floor. A full-height finished cellar with an additional powder room and closets adds exceptional value and versatility—ideal as a recreation room, gym, storage, office, or all of the above. The garden-level unit features two bedrooms and one full bath, along with direct access to the backyard. This unit includes modern conveniences such as an in-unit washer and dryer and a dishwasher, making it highly desirable for tenants or extended family. Set on one of Crown Heights’ most picturesque tree-lined streets, close to parks such as Browar and St John's, The Children's Museum, and in close vicinity of establishments such as Meat, Tacobee and King Thai and close to the A/C trains, 1349 Bergen Street delivers exceptional value, character, and convenience—all in one of Brooklyn’s most vibrant and storied neighborhoods.
Details
  • Status:No Longer Available
  • Size:3804 Sq Ft
  • Type:Townhouse
  • ID:1831349907749328721
  • Tax:$ 6180
Learn about this property's history, neighborhood, taxes, schools and more.
Marketproof building overview
Location

Copyright © 2026 Compass. All rights reserved. All information provided by the listing agent/broker is deemed reliable but is not guaranteed and should be independently verified.