Updated33 Days Ago
Added79 Days Ago
Added79 Days Ago
Active
About this Property
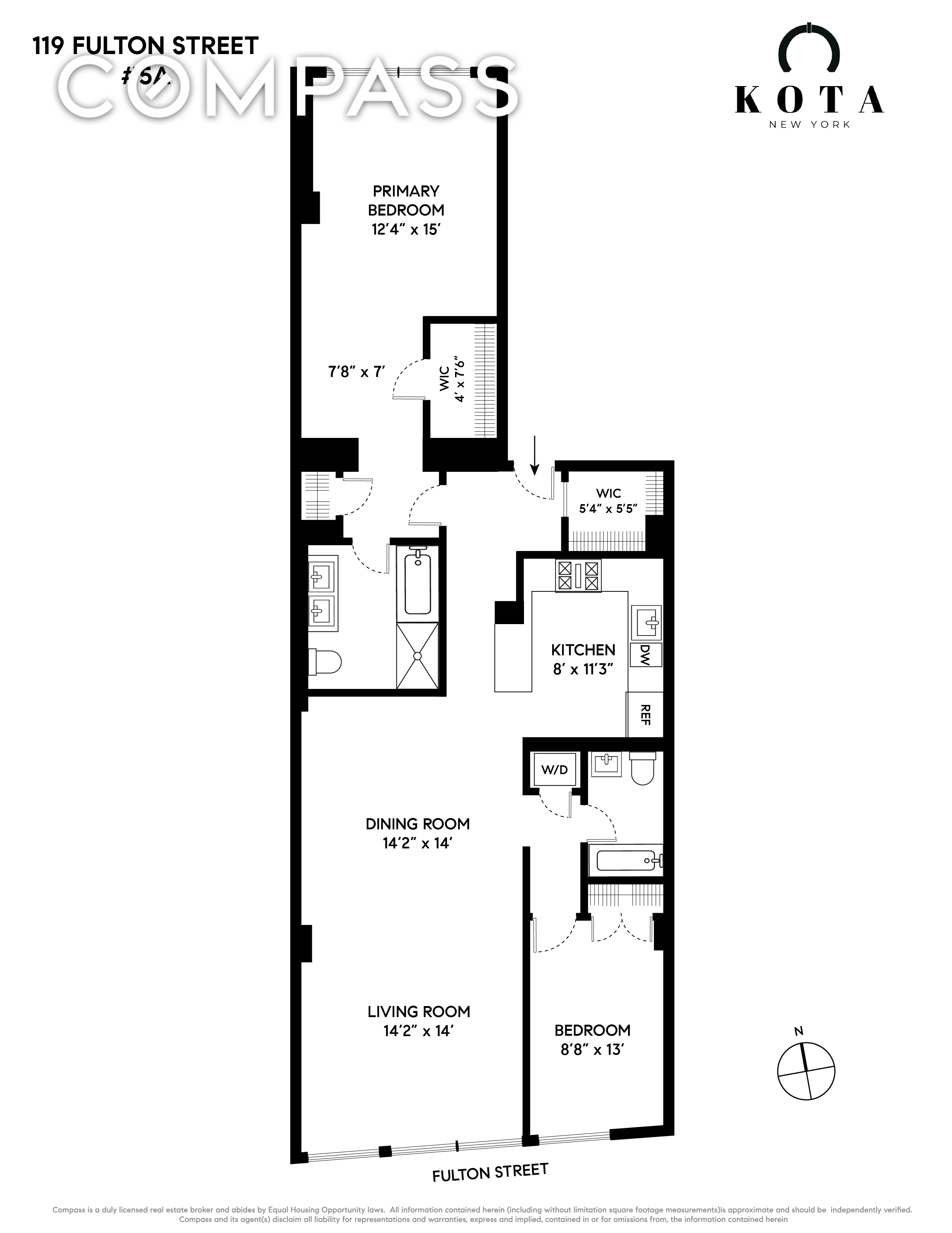
This sophisticated south-facing two-bedroom, two-bathroom condominium loft offers nearly 1,500 square feet of thoughtfully designed living space, blending refined finishes with a calm, understated sense of luxury. From the moment you enter, the apartment feels both expansive and composed, with soaring 10-foot ceilings, tall proportions, and an immediate sense of privacy and quiet that is rare in the city.
The foyer opens to a very spacious custom walk-in closet—perfect for coats, luggage, or seasonal storage—while additional closets throughout the home provide abundant storage for everyday living and long-term organization. Central air conditioning and oversized, city-quiet windows create a consistently comfortable and remarkably serene interior, effectively buffering the apartment from outside noise.
Beyond the entry, the home opens into a generous kitchen, dining, and living area that flows beautifully as one cohesive space. The scale of this area easily accommodates a large dining table, making it ideal for entertaining, while still feeling balanced and inviting for everyday living. The kitchen is both elegant and functional, featuring Poggenpohl cabinetry, marble countertops and backsplash, and high-end appliances including a Viking refrigerator and Bosch range. White oak hardwood floors in a warm walnut tone run throughout, enhancing the loft-like feel while maintaining a clean, modern aesthetic.
Just off the main living area is a well-proportioned secondary bedroom, offering flexibility as a guest room, home office, or den, with convenient access to a full bathroom.
The primary suite is thoughtfully set apart from the main living spaces, offering a private retreat. It features two large closets, including a spacious custom walk-in, providing exceptional storage. The en-suite primary bathroom has been extensively renovated, with the owners investing considerable care into creating a refined, spa-like experience. The bathroom is finished with dual sinks, a beautifully detailed vanity, and a generous walk-in shower, offering an elevated, timeless aesthetic.
Additional conveniences include an in-unit washer and dryer. The apartment is one of only two residences on the floor, offering a heightened sense of privacy and exclusivity.
Located within Fultonhaus, a boutique 14-story condominium, the building features a part-time doorman and a full-time superintendent, providing attentive service and seamless day-to-day management.
In the heart of the Financial District, this location offers unparalleled access to acclaimed dining, boutique shopping, and cultural landmarks, with the waterfront, parks, and multiple subway lines just steps away. Take in breathtaking skyline views from One World Observatory, wander historic streets by Trinity Church and Wall Street, or unwind along Battery Park and the Brookfield Place Winter Garden. Downtown living at its finest—sophisticated, serene, and effortlessly connected to the very best of FiDi.
The listed taxes reflect the 17.5% primary residence abatement.
Details
- Status:Active
- Size:1471 Sq Ft
- Type:Condo
- ID:1255754
- Tax:$ 1493
- Monthly Fees:$ 1411
Learn about this property's history, neighborhood, taxes, schools and more.
Location
Copyright © 2026 Compass. All rights reserved. All information provided by the listing agent/broker is deemed reliable but is not guaranteed and should be independently verified.
Tax:$1,493
Common Charges:$1,411
2
BA
2 BD