UpdatedToday
Added45 Days Ago
Added45 Days Ago
Active
About this Property
On a picturesque, uniform block just off the Eastern Parkway Greenway, this classic barrel-front limestone stands as a rare blend of preserved craftsmanship and future potential. Set on a 20’ × 100’ lot with an elevated front garden, this 20’ × 52’ two-family townhouse offers scale, substance, and soul—exactly what today’s buyers crave.
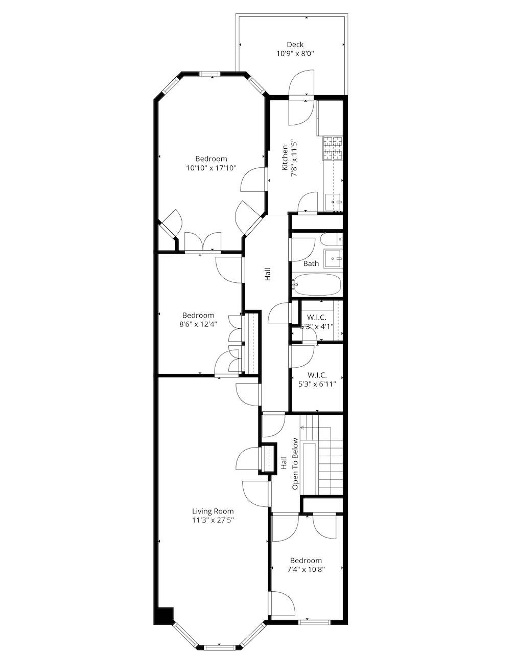
Inside, original architectural details unfold room by room: hand-inlaid hardwood floors, rich wood moldings, coffered ceilings, pocket doors, and elegant columns that define gracious living and dining spaces. A skylit dumbwaiter airshaft, tin ceilings, built-ins, and beautifully preserved porcelain sink and tub speak to the home’s turn-of-the-century pedigree. Sunlight filters through bay windows and multiple skylights, enhancing the warmth of the space throughout.
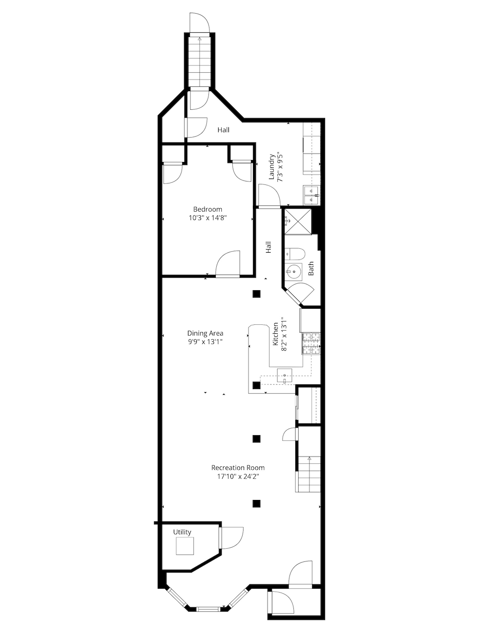
The layout offers flexibility and flow, with six bedrooms and three full baths, generous walk-in closets, separate dining rooms, two laundry rooms, and a first-floor extension that expands everyday living. A finished English basement with separate entry provides a versatile guest suite —ideal for extended family, work-from-home, or recreation.
Outdoor living is equally inviting. The elevated front garden has curb appeal. The landscaped backyard features flowering runners and garden space, complemented by a second-floor deck off the primary bedroom, creating a private retreat in the heart of Brooklyn.
For visionaries and value-seekers alike, the property presents a compelling opportunity: approximately 2,660 square feet of unused FAR, offering the chance to thoughtfully expand, add a doctor's office, reconfigure, or enhance—while honoring the home’s historic character.
Whether preserved, reimagined, or elevated into a modern masterpiece, 352 New York Avenue delivers timeless architecture, generous proportions, and long-term upside on one of Crown Heights’ most beautiful blocks.
A true Brooklyn classic—ready for its next chapter.
Details
- Status:Active
- Size:3381 Sq Ft
- Type:Townhouse
- ID:104761TH
- Tax:$ 7200
Learn about this property's history, neighborhood, taxes, schools and more.
Amenities
Location
Copyright © 2026 Compass. All rights reserved. All information provided by the listing agent/broker is deemed reliable but is not guaranteed and should be independently verified.
Tax:$7,200
3
BA
6 BD