Updated40 Days Ago
Added11/18/2025
About this Property
IN CONTRACT 

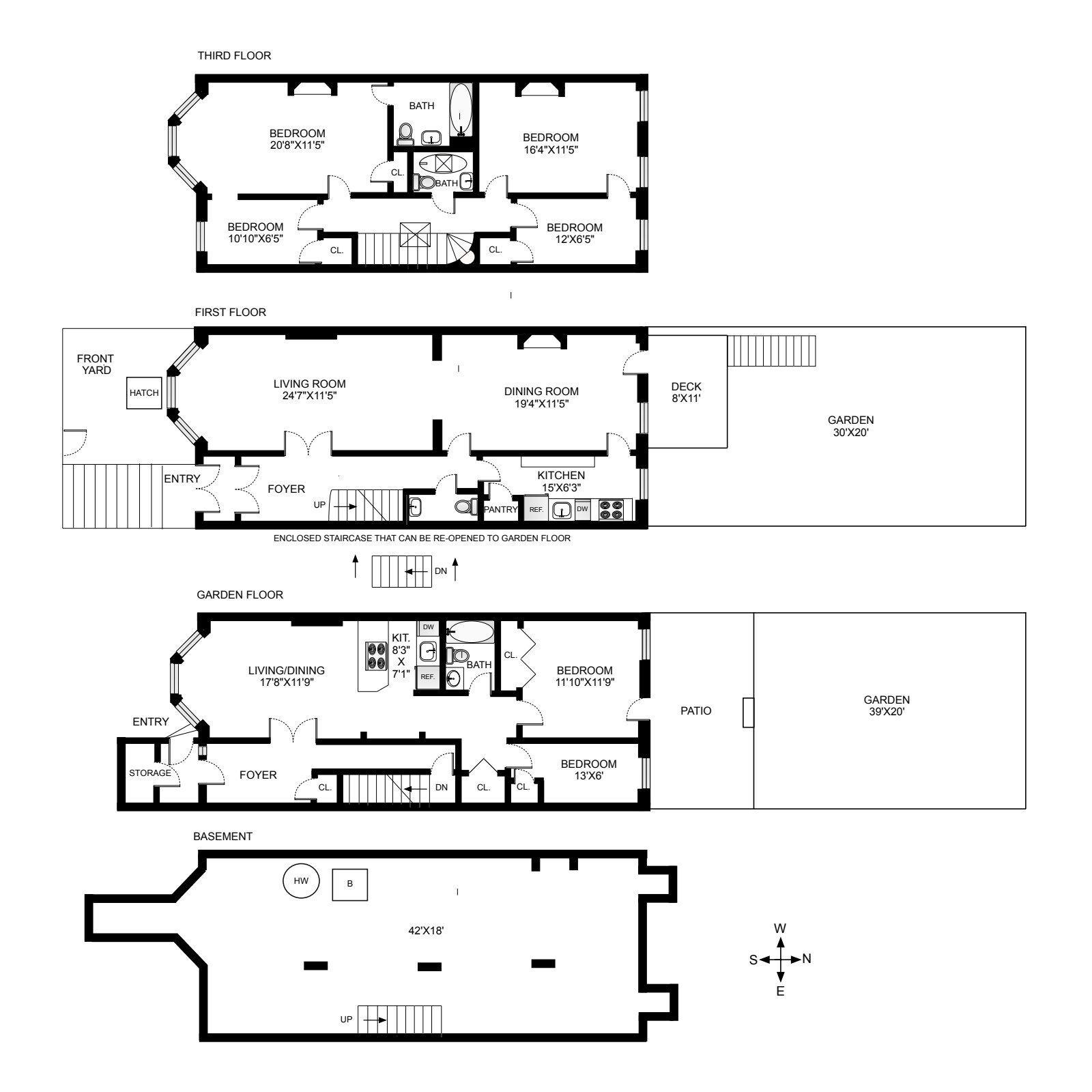
Two family, 3 story + cellar brownstone on 20 x 90 foot lot. Much original detail intact; plaster moldings, wood doors and window shutters. Garden level is a two bedroom, one bath unit with kitchen open to living room, and access to rear garden thru larger bedroom. Upper duplex has large living room with bay window, separate formal dining room and separate kitchen, powder room in hallway. Top floor has four bedrooms and two full baths; one ensuite to front bedroom. Metal deck off dining room on parlor floor. Rear garden. Large cellar contains gas boiler, water heater and meters.




Details
  • Status:No Longer Available
  • Type:Single Family
  • ID:23643078
  • Tax:$ 710
Learn about this property's history, neighborhood, taxes, schools and more.
Marketproof building overview
Amenities
Location

Copyright © 2026 Brown Harris Stevens. All rights reserved. All information provided by the listing agent/broker is deemed reliable but is not guaranteed and should be independently verified.