Updated56 Days Ago
Added4/22/2025
About this Property

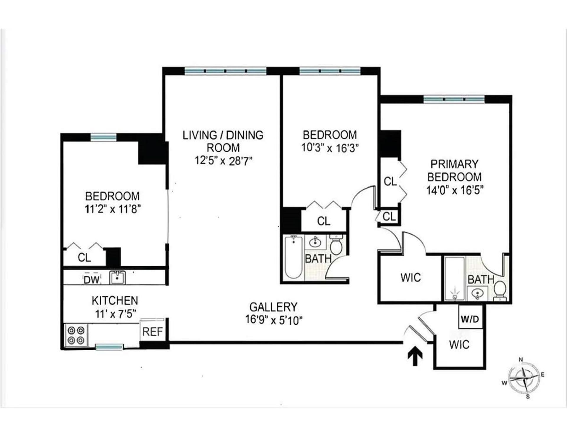
Situated on the 18th floor, this expansive three-bedroom home offers open city views from every room and a highly desirable split bedroom layout. Perfectly located in Carnegie Towers, a full service building in the heart of Carnegie Hill between Park and Lexington Avenues, the apartment combines space, functionality, and convenience.

As you enter the apartment, you're greeted by a long, welcoming gallery that features a large walk-in entry closet with a washer and dryer, offering exceptional storage and everyday practicality. The spacious living and dining area is well suited for both entertaining and everyday living, with sweeping north facing city views that add to the home's sense of openness. The apartment is also exceptionally quiet, offering a peaceful retreat high above the city.

The windowed kitchen invites you to cook with a large south facing window that fills the space with natural light, creating a bright and welcoming atmosphere. It features a stainless steel Viking refrigerator, a Bertazzoni gas burner, and a Bosch dishwasher-perfect for anyone who loves to cook or entertain.

Just off the living area, the third bedroom, currently outfitted with French doors, has a nice flow and is multi functional as a large bedroom or home office. The hallway leads to the primary suite, which includes an updated en suite bath with a sleek shower, a full wall of closets, and an extra large walk-in closet. The second bedroom offers open views and generous storage, with a full bath conveniently located just outside.Additional features include classic wood parquet floors, crown moldings, and abundant natural light throughout.

Carnegie Towers at 115 East 87th Street is a well maintained cooperative with a 24-hour doorman and concierge service from 7:30 AM to 11:30 PM daily. The building is set back from the street with beautifully landscaped plantings that provide a welcoming entrance year-round. It has recently completed major capital improvements, including brand new elevators (mechanics and cabs), all new windows, and refreshed hallways. A brand new, fully equipped fitness center will be completed soon. The lobby is in the final phase of upgrades, and notably, all of the work has been completed without any assessments. Residents also enjoy a lounge with a spacious outdoor terrace, on-site parking with direct elevator access, rentable storage units, and bike storage.

With Central Park, Museum Mile, world class shopping, fine dining, and convenient subway and bus transportation just moments away, this home offers an unbeatable location and the very best of Upper East Side living.

Details
  • Status:No Longer Available
  • Size:1300 Sq Ft
  • Type:Apartment/coop/loft
  • ID:845404
  • Monthly Fees:$ 2667
Learn about this property's history, neighborhood, taxes, schools and more.
Marketproof building overview
Location

Copyright © 2026 Douglas Elliman Real Estate. All rights reserved. All information provided by the listing agent/broker is deemed reliable but is not guaranteed and should be independently verified.