Added3/7/2025
About this Property
ALL OPEN HOUSES ARE BY APPOINTMENT ONLY -- PLEASE VIEW VIDEO FOR MORE INFORMATION
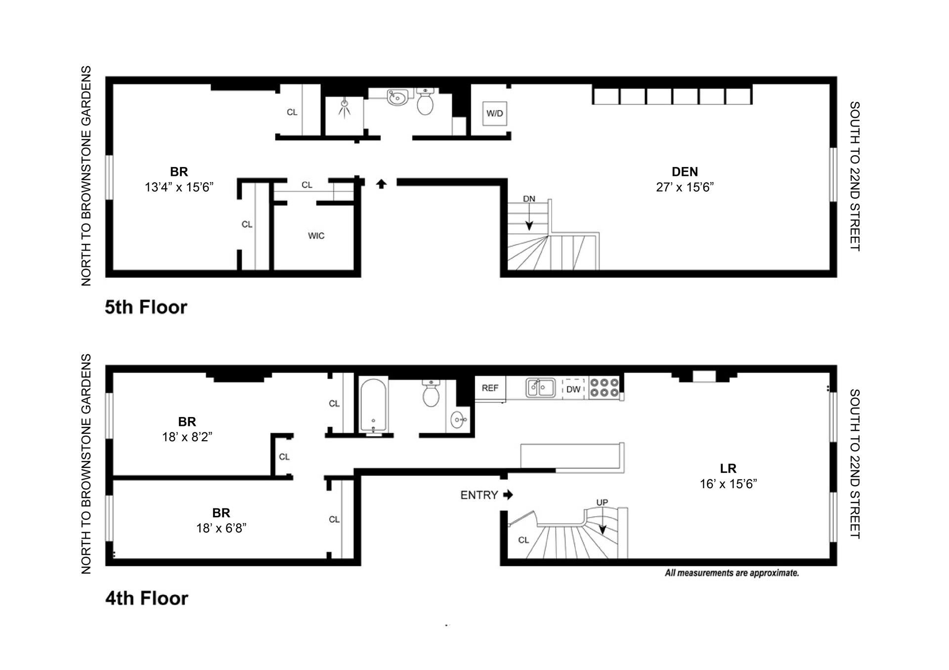
This top-floor duplex is townhouse perfection with its sun-flooded living room with views to West 22nd Street, decorative fireplace, and 10-foot ceilings. The kitchen has a tremendous number of cabinets, top appliances, and a bright tile backsplash. Just down the hall are two of the three spacious bedrooms, featuring great custom closets and north exposures to other brownstones, as well as a renovated bathroom with Lagos Azul limestone counters & floors, a tub shower combo, and subway tile.
Up the sweeping staircase is a huge, stunning south-facing den with soaring 12-foot ceilings and a wall of custom bookshelves. The peaceful primary offers a huge closet with hidden walk-in storage. The second bathroom has a skylight, Pietro Cardoso counters & floors, a walk-in shower, and extra cabinets.
Additional features of this lovely home are split unit AC, original wide plank wood floors, and a washer/dryer.
Built in the 19th century, 419 West 22nd Street is a charming 4-unit co-op located in the heart of Chelsea with ornate wainscotting, crown molding, and banisters. You'll be on one of the prettiest blocks in the city, just around the corner from great shops, restaurants, convenient transportation, Hudson River Park, Chelsea Piers, the Highline, & the Whitney. 80% financing allowed.
NOTE: the apartment is a three-flight walk-up.
Details
- Status:No Longer Available
- Size:2176 Sq Ft
- Type:Apartment/coop/loft
- ID:840906
- Monthly Fees:$ 2345
Amenities
Location
Copyright © 2026 Douglas Elliman Real Estate. All rights reserved. All information provided by the listing agent/broker is deemed reliable but is not guaranteed and should be independently verified.