Updated10/31/2025
Added6/30/2020
About this Property

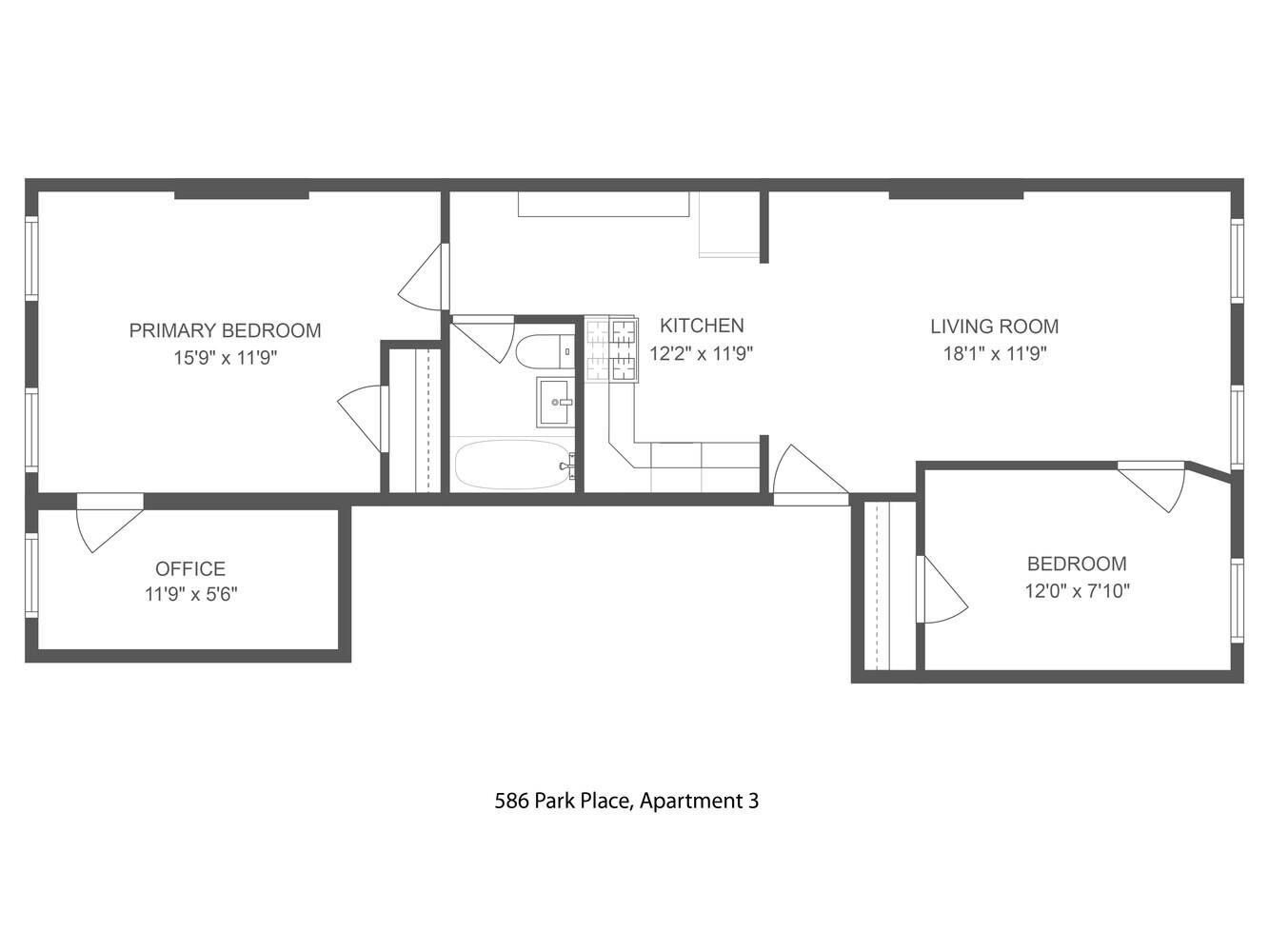
Welcome to 586 Park Place, residence 3 - a newly renovated two-bedroom plus home office that offers the perfect blend of historical Brooklyn charm and modern living, located in the heart of Crown Heights.

Step inside to find an expansive, sun-splashed living room and open-concept kitchen that creates a seamless setting for both everyday living and effortless entertaining. The kitchen is outfitted with brand new premium appliances including a Frigidaire oven with gas range, microwave, refrigerator, and Bosch dishwasher. Sleek cabinetry and generous quartz countertops make this space as functional as it is stylish. High ceilings and beautiful hardwood floors run throughout the home, adding warmth and character.

The spacious primary suite offers a peaceful retreat with leafy green views and abundant morning light. Just off the bedroom, an additional bonus room serves perfectly as a home office, nursery, or creative studio. The secondary bedroom is also generously proportioned and enjoys great natural light. A centrally located modern full bathroom completes the layout, featuring a deep soaking tub, rain shower, large-format tiles, and abundant storage.

Ideally situated in prime Crown Heights, 586 Park Place is moments away from Prospect Park’s expensive green spaces and cultural landmarks, including the historic Grand Army Plaza, the Brooklyn Museum, and the Brooklyn Botanic Garden. This vibrant neighborhood is home to an array of beloved cafés and eateries such as Café Mado, Chavela’s, Altar, Agi’s Counter, Café Rue Dix, and Tooker Alley. With the S, 2, 3, 4 and 5 trains all nearby, along with multiple bus lines and Citi Bike stations, this homes offers an effortless blend of culture, convenience and classic Brooklyn charm.

Utilities included: Hot water

Tenant responsibilities: Electricity, gas, cable/internet

Additional Details: $20 application fee per applicant. First month's rent and one month's security deposit due at lease signing. If applicable, $25 monthly pet fee per pet will also be incurred.

Note: All tenants are required to obtain renter's insurance.

Details
  • Status:No Longer Available
  • Size:721 Sq Ft
  • Type:Apartment/coop/loft
  • ID:663609
Amenities

Copyright © 2026 Douglas Elliman Real Estate. All rights reserved. All information provided by the listing agent/broker is deemed reliable but is not guaranteed and should be independently verified.