Updated4/30/2025
Added3/27/2025
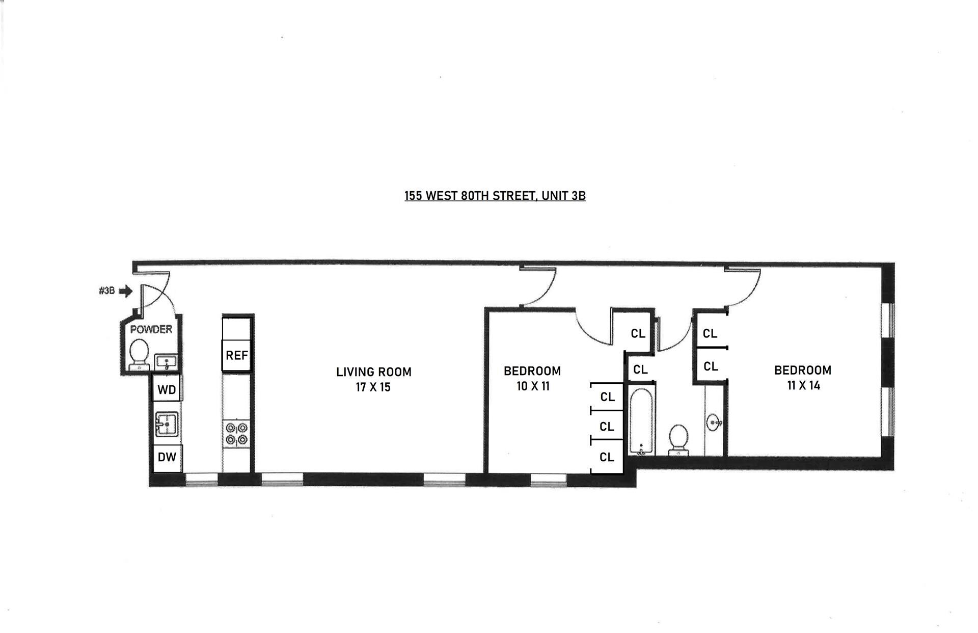
About this Property

Discover a serene oasis in the heart of the Upper West Side with this newly renovated 2-bedroom, 1.5-bathroom apartment featuring a spacious layout and open kitchen with new stainless steel appliances and washer/dryer. Nestled on a coveted block, this charming and comfortable retreat blends modern upgrades with timeless appeal. Great for unwinding or entertaining, the thoughtfully designed space offers a peaceful escape from the city's hustle while keeping you steps away from the best of Manhattan living.

This pre-war townhouse was built in 1896, converted to a co-op in 1983, and is landmarked for its historic architecture. Located on a beautiful tree-lined street between Columbus and Amsterdam, just steps away from Central Park, and the Museum of Natural History with great restaurants and shops nearby. Close proximity to all transportation including the 1 train (at 79th), B/C train (at 81st) and the M79 crosstown bus.

Details
  • Status:No Longer Available
  • Type:Apartment/coop/loft
  • ID:570966
  • Monthly Fees:$ 1730
Learn about this property's history, neighborhood, taxes, schools and more.
Marketproof building overview
Location

Copyright © 2026 Douglas Elliman Real Estate. All rights reserved. All information provided by the listing agent/broker is deemed reliable but is not guaranteed and should be independently verified.