Updated9/26/2025
Added5/14/2025
Added5/14/2025
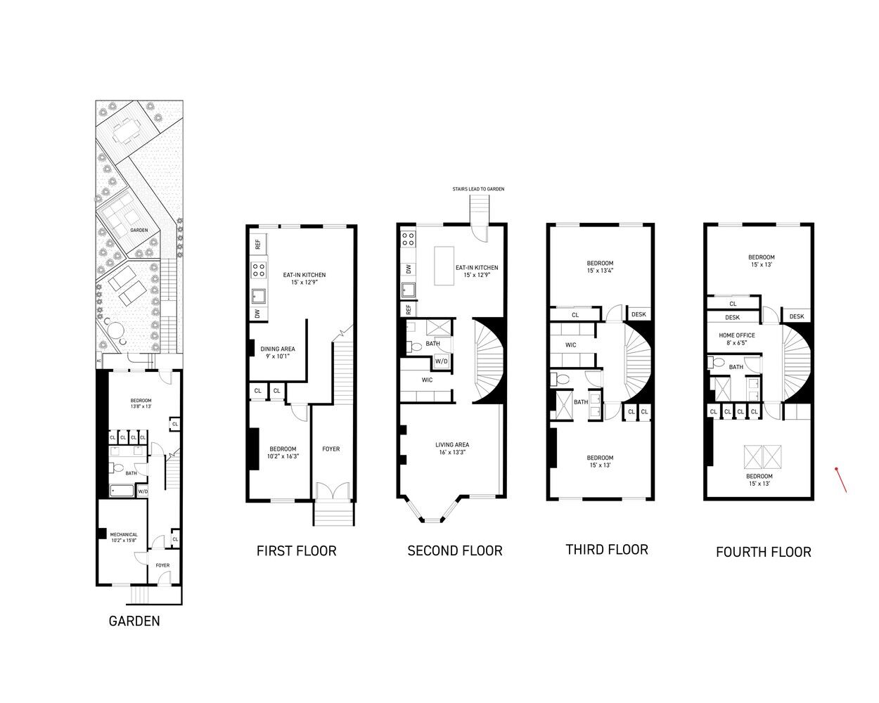
About this Property
Once in a lifetime, does the market offer a historically quintessential Cobble Hill townhome like 62 Wyckoff Street. Owned and loved by the same family for over sixty years, this five story, two family brick residence is primed for you to design your dream home on a quiet tree lined block of residences of the most discerning quality. Delivered vacant, with over 3,000 square feet of finished living space, the property is currently configured as a lower two bedroom garden duplex, with an upper five bedroom, two bath, triplex. Beautiful solid oak double door entry, original winding staircase, bay window, crown moldings, mantle, and exposed brick. Solid mechanicals, roof, plumbing, and electrical throughout, however, it's recommended to bring your architect and contractor as this home is in need of a thorough renovation. Plant your roots in brownstone Brooklyn within the heart of the shopping and dining districts of Smith and Court streets and enjoy residing only one block to the F, G train lines to Manhattan.
Limited showings by appointment only.
Limited showings by appointment only.
Details
- Status:No Longer Available
- Size:3800 Sq Ft
- Type:Multi-family
- ID:463974
- Tax:$ 604
Learn about this property's history, neighborhood, taxes, schools and more.
Location
Copyright © 2026 The Agency. All rights reserved. All information provided by the listing agent/broker is deemed reliable but is not guaranteed and should be independently verified.