Active
About this Property
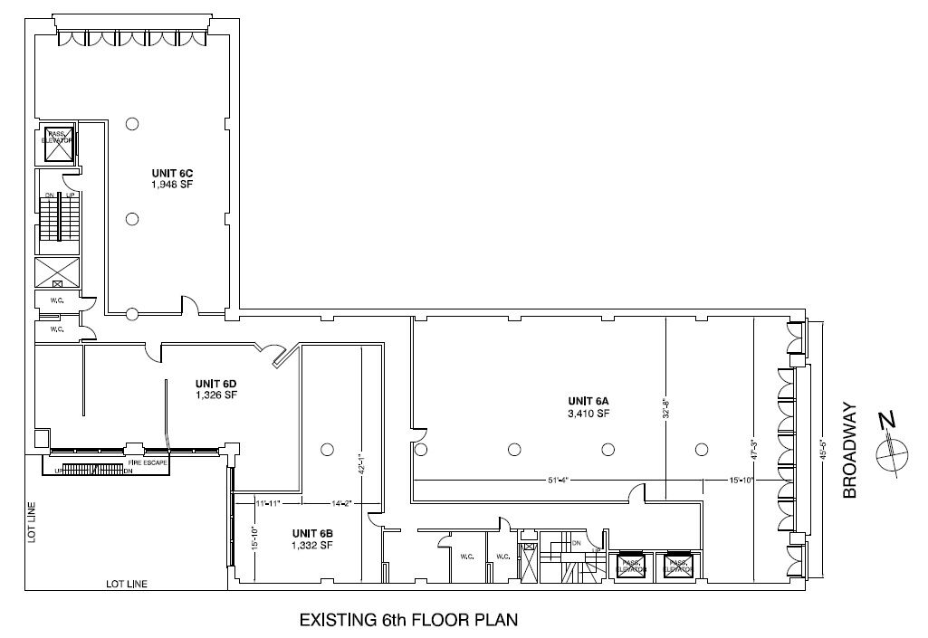
An unparalleled and exclusive opportunity awaits to acquire the entire 6th floor of a historic multi-use, live-work, loft building located at the renowned address of 561 Broadway, also known as 88 Prince Street. This expansive 8,016 sq ft of raw Soho loft space, currently divided into four distinct commercial/retail loft areas, presents a unique chance for residential development. There is precedent for rezoning to a residential designation, making it an ideal investment for a discerning buyer with patience and expertise.
The loft can be accessed via three keyed elevators, and central HVAC rooftop units are already in place, offering the potential for a complete modernization. The eastern exposure floods the space with morning light, while a balcony overlooking the bustling Broadway adds to its allure. The northern wall of windows offers views of stylish Prince Street, making the location truly exceptional. The intersection of Prince Street and Broadway is iconic, historic, and fashionable, making it a perfect setting for a sophisticated residence.
The design and layout of the space are only limited by one's imagination, vision, and resources, with the option to keep the existing layout or customize it according to personal preferences. The loft can be used as a single residence or divided into multiple spaces, generating investment income from tenants. The cooperative board is flexible and open to a wide range of buyer types, making this an opportunity not to be missed.
The building, designed by renowned architect Ernest Flagg, a Beaux-Arts trained New Yorker who referred to it as the "Little Singer Building" in 1902, boasts a rich history. Construction began in the spring of 1903, five years prior to the construction of the Singer Tower, which was the world's tallest building at that time. The building was converted to a cooperative in 1979 and now offers an unconventional mix of residential and commercial units, including 20 offices and 15 live/work spaces for artists and creatives.
The historic architecture of the "Little Singer" is characterized by its wide windows and strip balconies that float across each level, adorned with timeless wrought iron railings and sophisticated design, which vary from floor to floor. The cooperative has undertaken restoration work, including repainting the decorative ironwork in the same eye-catching green color originally used by Flagg in 1903, starting in 1983.
This exceptional property is offered at $5,750,000 or best offer, with private showings exclusively available to reputable buyers or brokers. Buyer brokers are required to collect their own fee. Don't miss this extraordinary opportunity to own a prestigious residence in one of the most coveted locations in Soho.
Current Maintenance: $16,966.40 ($2,120.80 X 8 shares)
Electric use approximately: $1,000 (can be drastically reduced by using cooling towers already in place)
Insurance: $2,000
Images and floorplans
Inquire within.
BUYER pays buyer broker fee.
The loft can be accessed via three keyed elevators, and central HVAC rooftop units are already in place, offering the potential for a complete modernization. The eastern exposure floods the space with morning light, while a balcony overlooking the bustling Broadway adds to its allure. The northern wall of windows offers views of stylish Prince Street, making the location truly exceptional. The intersection of Prince Street and Broadway is iconic, historic, and fashionable, making it a perfect setting for a sophisticated residence.
The design and layout of the space are only limited by one's imagination, vision, and resources, with the option to keep the existing layout or customize it according to personal preferences. The loft can be used as a single residence or divided into multiple spaces, generating investment income from tenants. The cooperative board is flexible and open to a wide range of buyer types, making this an opportunity not to be missed.
The building, designed by renowned architect Ernest Flagg, a Beaux-Arts trained New Yorker who referred to it as the "Little Singer Building" in 1902, boasts a rich history. Construction began in the spring of 1903, five years prior to the construction of the Singer Tower, which was the world's tallest building at that time. The building was converted to a cooperative in 1979 and now offers an unconventional mix of residential and commercial units, including 20 offices and 15 live/work spaces for artists and creatives.
The historic architecture of the "Little Singer" is characterized by its wide windows and strip balconies that float across each level, adorned with timeless wrought iron railings and sophisticated design, which vary from floor to floor. The cooperative has undertaken restoration work, including repainting the decorative ironwork in the same eye-catching green color originally used by Flagg in 1903, starting in 1983.
This exceptional property is offered at $5,750,000 or best offer, with private showings exclusively available to reputable buyers or brokers. Buyer brokers are required to collect their own fee. Don't miss this extraordinary opportunity to own a prestigious residence in one of the most coveted locations in Soho.
Current Maintenance: $16,966.40 ($2,120.80 X 8 shares)
Electric use approximately: $1,000 (can be drastically reduced by using cooling towers already in place)
Insurance: $2,000
Images and floorplans
Inquire within.
BUYER pays buyer broker fee.
Details
- Status:Active
- Size:8016 Sq Ft
- Type:Coop
- ID:2360606
- Monthly Fees:$ 16966
- Year Built:1902
- Listing Type: Exclusive
Learn about this property's history, neighborhood, taxes, schools and more.
Location
Copyright © 2026 Nest Seekers. All rights reserved. All information provided by the listing agent/broker is deemed reliable but is not guaranteed and should be independently verified.
Monthly Fee:$16,966
1
BA
0BD