Updated1/4/2017
Added8/1/2016

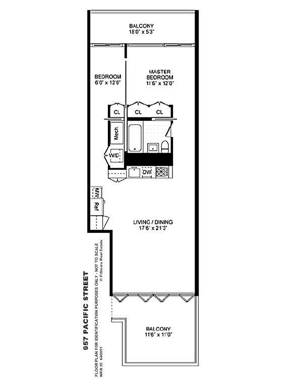
957 Pacific Street #202

About this Property
Welcome to 957 Pacific Street... As part of The Sydney condominiums developed by Hello Living, this condominium set the bar for architecture, interior design and amenities in Prospect Heights. This floor-through condo offers a loft-like apartment with polished concrete floors and concrete accent wall, glass panel entryway doors which fully fold back to reveal an extended indoor-outdoor entertainment space and floor to ceiling windows with southwest and northeast exposures. The fit and finish of this industrial chic elevator building include exposed air ducts with central HVAC, frosted glass pocket doors to privatize the bedroom plus a solid pocket door which can separate the bedroom into two sleeping chambers creating an additional child or guest bedroom. The sleek kitchen boasts Imported White lacquer and Wenge Wood kitchen cabinets, White Stone Glass counter-tops, Fisher Paykel refrigerator and wall mounted oven, Bosch dishwasher and stove-top. The luxurious bathroom offers a deep soaking bathtub with rainfall shower head, radiant heated floor and Toto commode. For convenience you also have an in-unit Bosch washer and dryer. The unit comprises 748 square feet of living space plus the 138 square foot front porch and an additional rear balcony of 102 square feet. As an added BONUS this unit also includes a DEEDED and COVERED PARKING SPACE! Shared amenities include childrens creative play space, full fitness center/gym, 50ft. lap pool, sauna, billiards & game room, screening room, business and entertainment suite to name a few. The condominium also has 17 years still left on the tax abatement. The condo resides on a beautiful tree lined street offering a 10 minute commute to Manhattan and surrounded by a plethora of cafes, bars, restaurants and boutiques. Grand Army Plaza, Prospect Park, Brooklyn Botanical Gardens, Brooklyn Museum are a short walk away as well as the Brooklyn Academy of Music and Barkley Center. Initial offering price is $760,000.00. Exclusive private showings available by appointment with 24 hour notice.
Details
  • Status:No Longer Available
  • Size:748 Sq Ft
  • Type:Condo
  • ID:640051
Learn about this property's history, neighborhood, taxes, schools and more.
Marketproof building overview
Location

Copyright © 2026 Fillmore Real Estate. All rights reserved. All information provided by the listing agent/broker is deemed reliable but is not guaranteed and should be independently verified.