Updated2/26/2024
Added10/24/2023
Added10/24/2023
Active
About this Property
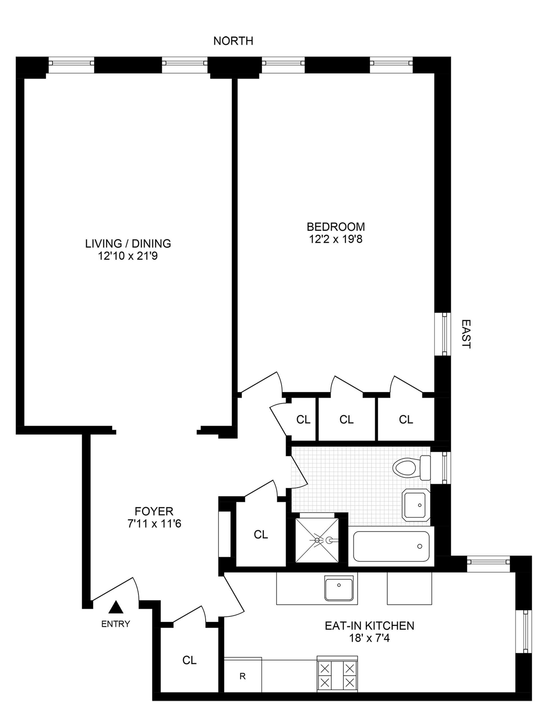
Unique opportunity to create the home of your dreams in one of the area's most sought-after co-op buildings! With leafy views and a quiet back-of-the-building location, this sprawling one-bedroom can easily be converted to function as a two-bedroom home.<br><br>Enter into a huge foyer with a built-in curio cabinet, a large walk-in closet, and enough space to create a home office area. To the right is a wide galley kitchen with a sizable eat-in area and two large windows/exposures. The bathroom is bigger than average for a pre-war building, and has a separate shower stall that would be a perfect place to install an in-unit W/D, which is permitted with board approval. The enormous bedroom with two exposures can be split into two rooms, both of which would still be quite spacious and would have plenty of closet space (see alternate floor plan). In total the home has five closets, two of which are walk-in, hardwood floors, and pre-war details throughout.<br><br>Berkley Square is an excellent co-op with lots of amenities and very strong financials. Extremely affordable maintenance, high value assets, and additional rental income make this is a very sound building in which to invest. Pets, including dogs, are allowed, and the building has brand new elevators, door attendants, a live-in super, a full-time porter, free bike storage, and a common outdoor space. Extra storage is available for rent (possible waitlist) and parking is $75/month (waitlist). Conveniently located close to Prospect Park, the B and Q trains at Church Avenue, Cortelyou Road and Church Avenue amenities, and the newly revamped King's Theatre. Less than a mile from the new Kensington Dog Run.<br><br>A monthly assessment in the amount of $155/mo is in place until 12/26.
Details
- Status:Active
- Type:Apartment
- ID:22738549
- Monthly Fees:$ 542
Learn about this property's history, neighborhood, taxes, schools and more.
Amenities
Location
Copyright © 2026 Douglas Elliman. All rights reserved. All information provided by the listing agent/broker is deemed reliable but is not guaranteed and should be independently verified.
Monthly Fee:$542
1
BA
1 BD