Updated3/31/2024
Added4/14/2023

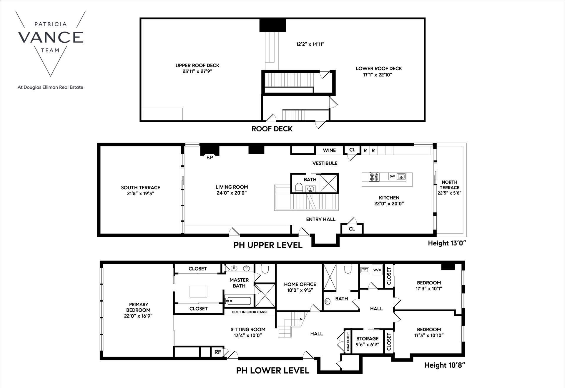
104 Charlton St, # PHW

About this Property
Spectacular 3 bedroom 3 bathroom + library penthouse duplex with generous outdoor terraces and a huge roof deck, at the boutique 104 Charlton Street! Wrapped in luxury, this sprawling home boasts 3,721 sq ft of impeccably-renovated modern interiors, and an amazing 2,134 sq ft of exterior space comprised of lovely northern and southern terraces on the main level, and a massive private north and south-facing roof terrace for lounging and entertaining. The top-floor oasis with an outdoor kitchen and bar, outdoor TV, multiple seating areas and fabulous views was recently decked to create a private rooftop haven.<br>Other refined enhancements include a brand new state-of-the-art chef's kitchen with Gaggenau appliances, wine cooler and bar, white Corian counters and integrated sink, and custom Boffi cabinets. A high-tech smart home Savant/Sonos system controls speakers, lights, blinds, TV and security with a touch of your phone.<br><br>A keyed elevator spills into a sun-blasted living room marked by soaring 14-foot ceilings, rich hardwood floors, a gas fireplace, and built-in projector with concealed 120" screen - perfect for hosting guests and movie nights. A wall of floor-to-ceiling windows offers a seamless connection to the large southern terrace through sliding glass doors. The open flow continues with a spacious dining area and gorgeous new kitchen with a long island affording easy food prep and additional seating. Off the cook's quarters is a wall of glass leading to a northern terrace for enjoying morning coffee and evening cocktails. A convenient upscale full bathroom completes the main level.<br><br>Access the expansive lower floor via the sleek wood staircase to find 3 inviting bedrooms, 2 stylish mosaic full bathrooms, a wood-paneled library, laundry room with Miele washer-dryer, and storage room. Your phenomenal primary bedroom retreat features a wall of windows, closet-lined dressing area, and large sitting room. The opulent en-suite spa bath pampers with heated floors, an elongated dual-sink vanity, chic soaking tub and oversized steam shower.<br><br>Built in 1920, 104 Charlton Street is a handsome condominium that was once part of the West Soho printing business. Today this beautiful 8-story cast iron and brick structure houses 14 modern luxury residences as well as 2 ground floor commercial spaces. The building is located in vibrant Soho/Hudson Square close to all the offerings of nearby Soho, Tribeca and the West Village as well as great restaurants, shops & museums, Brooklyn Fare, Trader Joe's, and Hudson River Park. Pets are allowed.
Details
  • Status:Active
  • Size:3721 Sq Ft
  • Type:Condo
  • ID:22411477
  • Tax:$ 4968
  • Monthly Fees:$ 2128
Learn about this property's history, neighborhood, taxes, schools and more.
Marketproof building overview
Location

Copyright © 2026 Douglas Elliman. All rights reserved. All information provided by the listing agent/broker is deemed reliable but is not guaranteed and should be independently verified.

Tax:$4,968
Common Charges:$2,128
3 BA
3 BD
Contact Us
Patricia Vance
Douglas Elliman
Sandra Ripert
Douglas Elliman