Updated11/7/2018
Added9/25/2018

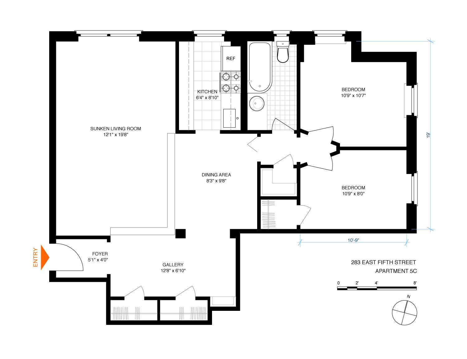
283 E 5th St, APT C5

About this Property
The Sky's The Limit with this spacious, sunny and super pretty 2 bedroom Art Deco Kensington apartment! Originally a 1 bedroom apartment, 283 East 5th Street, #5C is currently configured as two, windowed bedrooms. You can choose to keep this fully functioning design, or easily opt to bring back to its original configuration.Treetops, rooftops and dreamy skyline views of Manhattan take center stage in this corner apartment. Enjoy the light and views from every room! The 20-foot sunken living room is a show stopper, and provides a spacious, yet intimate seating area along with the glamour of a romantic bygone era. Additional period details include original herringbone and parquet floors, and crown molding. The elegant entryway and gallery provides a dramatic entrance upon walking in, and features 2 closets and a display nook to highlight your favorite objects.The windowed kitchen provides upper and lower cabinets on both sides, and plenty of counter space for food preparation. The bathroom has been updated with a new vanity and a freshly glazed bathtub, highlighting the art deco trim, and complementing the art deco tiles.This beautiful elevator building, is ideally located on the corner of quiet Albemarle Road and East 5th Street. This terrific Kensington location provides easy access to F/G trains at Fort Hamilton Parkway or Church Avenue ~ 3 blocks away ~ local buses, and the express bus to Manhattan. It is 2 blocks to Greenwood Playground and P.S. 130. Ocean Parkway provides a short walk to Brooklyn's premier playground ~ Prospect Park, or a fun and easy bike ride to the beach at Coney Island. Shopping, restaurants and amenities are conveniently close by. This professionally-managed building is impeccably maintained with a live-in super. The building's basement level provides common storage, bike storage and a central laundry room with card-operated machines. Cats are permitted, and dogs allowed upon approval. Space, views, light, charm ~ it is possible to get all you want in a 1 bedroom apartment! Open House: Sunday, October 7th ~ 11:00 - 1:00 pm
Details
  • Status:No Longer Available
  • Type:Coop
  • ID:5502234
  • Monthly Fees:$ 785
  • Year Built:1939
Learn about this property's history, neighborhood, taxes, schools and more.
Marketproof building overview
Location

Copyright © 2026 Corcoran. All rights reserved. All information provided by the listing agent/broker is deemed reliable but is not guaranteed and should be independently verified.