Updated6/14/2018
Added5/24/2018

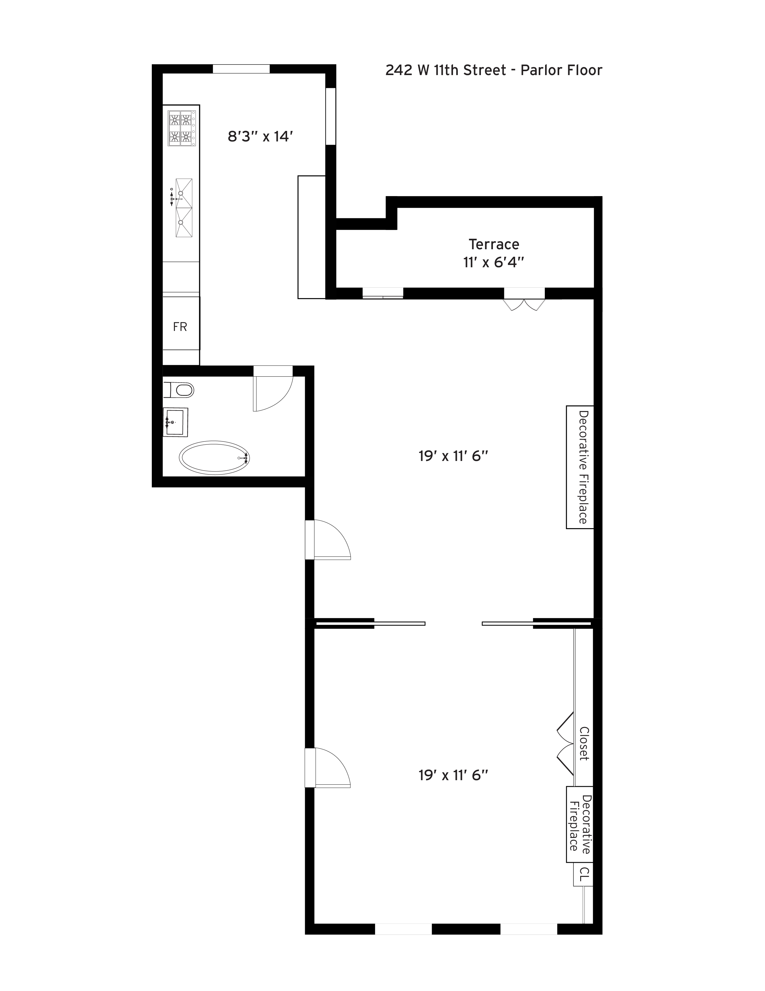
242 W 11th St, # PARLOR

About this Property
Enjoy townhouse living in the gorgeous parlor floor of this prime West Village home. With a private terrace, high ceilings an open layout and plenty of windows over-looking the back garden and the tree lined street, this is a classic West Village home that is not to be missed. Both the living room and bedroom are spacious and the windowed eat-in kitchen has plenty of counter space and storage. Charming pre-war details include two decorative fire places, hardwood floors, French door windows leading to the terrace and large sliding doors to separate the living room and bedroom or to leave open creating one grand space. There are also well designed built-ins and a large closet allowing more comfortable living. No pets allowed.
Details
  • Status:No Longer Available
  • Type:Rental
  • ID:5462815
Learn about this property's history, neighborhood, taxes, schools and more.
Marketproof building overview
Location

Copyright © 2026 Corcoran. All rights reserved. All information provided by the listing agent/broker is deemed reliable but is not guaranteed and should be independently verified.