Updated10/20/2018
Added5/11/2018
Added5/11/2018
About this Property
Finally, a townhouse that has the space you want, the light you crave and a smart, sensible layout to suit your needs. Meticulously renovated from top to bottom with great attention to detail, this impeccable Carroll Gardens single-family home offers over 3000 square feet of living space on four floors. The modern exterior is replicated inside with clean lines and sophisticated finishes and fixtures throughout.
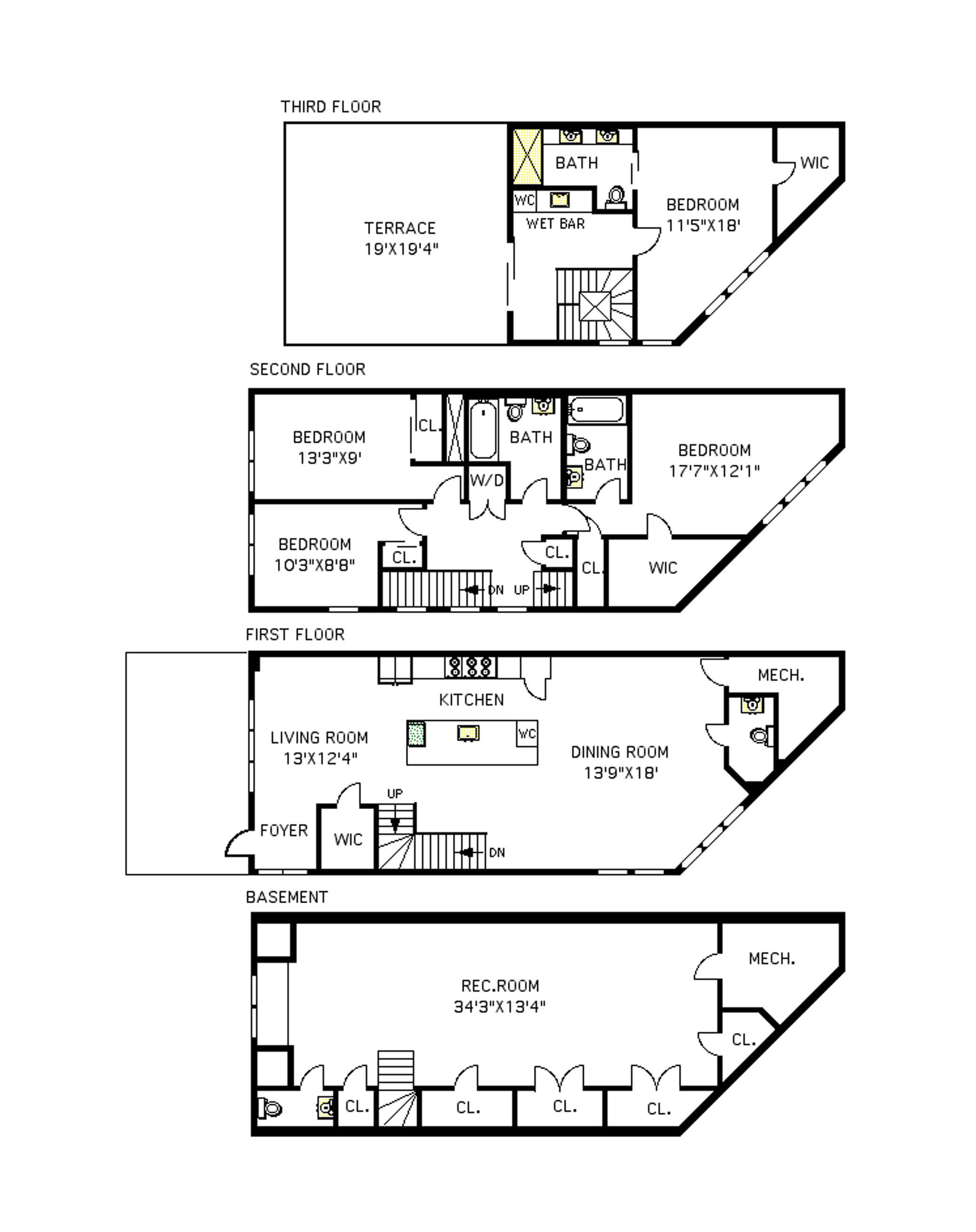
As you enter the house, you're greeted by an open floor plan, anchored by the center kitchen. Separate living and dining spaces are created on either side. The kitchen features a suite of Thermador appliances including a professional grade six-burner range with hood, a 36" French door refrigerator, and a dishwasher. An under-counter microwave and wine fridge can be found in the large island which easily accommodates seating for five. Caesarstone countertops and abundant white oak and lacquer cabinetry provide ample work and storage space. A charming half bath is also located on the main floor, as is a thoughtfully large entry closet.
Down the open stairway is the spacious finished recreation/family room, complete with wood laminate floors, a lovely half bath, and closets and storage galore. A large light well illuminates the space.
Up the windowed stairway, you'll find three gracious bedrooms, including one that could easily function as a master suite with en-suite bath. Both bathrooms on this floor feature subway tile, classic vanities with marble tops and tile flooring. A large washer/dryer and a convenient linen closet are also on the second floor. All the bedrooms are well-proportioned and offer generous closet space. The fourth bedroom is perched on the top floor and features a walk-in closet and its own en-suite marble bath with double sinks and a large walk-in shower.
Through sliding glass doors, the 425 square foot roof deck is your own personal outdoor oasis. Smartly adjacent is a wet bar, complete with Caesarstone counter, glass tile backsplash, stylish white cabinetry, and a wine fridge.
Throughout the house, large, triple-paned west- and north-facing windows bring in beautiful light and keep the bustle of the city out. Wide-plank white oak floors flow through the home, and modern light fixtures grace rooms and hallways. Designer wallpaper can be found in the entryway and bathrooms. The home also has three-zoned central air and heat.
Set back from the street by a lovely landscaped courtyard, complete with a bluestone patio and custom planters, the house features charcoal grey fiber-cement siding and triple-paned Klearwall windows, making it an incredibly energy efficient home. All systems and mechanicals are new, including electric, central heat and cooling, and roof.
This unique, move-in-ready home is located just a few blocks from both the Carroll Street and 9th Street F/G stops, two blocks from the great restaurants, shops and amenities of Court Street, and is currently zoned for PS 58.
As you enter the house, you're greeted by an open floor plan, anchored by the center kitchen. Separate living and dining spaces are created on either side. The kitchen features a suite of Thermador appliances including a professional grade six-burner range with hood, a 36" French door refrigerator, and a dishwasher. An under-counter microwave and wine fridge can be found in the large island which easily accommodates seating for five. Caesarstone countertops and abundant white oak and lacquer cabinetry provide ample work and storage space. A charming half bath is also located on the main floor, as is a thoughtfully large entry closet.
Down the open stairway is the spacious finished recreation/family room, complete with wood laminate floors, a lovely half bath, and closets and storage galore. A large light well illuminates the space.
Up the windowed stairway, you'll find three gracious bedrooms, including one that could easily function as a master suite with en-suite bath. Both bathrooms on this floor feature subway tile, classic vanities with marble tops and tile flooring. A large washer/dryer and a convenient linen closet are also on the second floor. All the bedrooms are well-proportioned and offer generous closet space. The fourth bedroom is perched on the top floor and features a walk-in closet and its own en-suite marble bath with double sinks and a large walk-in shower.
Through sliding glass doors, the 425 square foot roof deck is your own personal outdoor oasis. Smartly adjacent is a wet bar, complete with Caesarstone counter, glass tile backsplash, stylish white cabinetry, and a wine fridge.
Throughout the house, large, triple-paned west- and north-facing windows bring in beautiful light and keep the bustle of the city out. Wide-plank white oak floors flow through the home, and modern light fixtures grace rooms and hallways. Designer wallpaper can be found in the entryway and bathrooms. The home also has three-zoned central air and heat.
Set back from the street by a lovely landscaped courtyard, complete with a bluestone patio and custom planters, the house features charcoal grey fiber-cement siding and triple-paned Klearwall windows, making it an incredibly energy efficient home. All systems and mechanicals are new, including electric, central heat and cooling, and roof.
This unique, move-in-ready home is located just a few blocks from both the Carroll Street and 9th Street F/G stops, two blocks from the great restaurants, shops and amenities of Court Street, and is currently zoned for PS 58.
Details
- Status:No Longer Available
- Type:Single-family Townhouse
- ID:5432750
- Tax:$ 585
- Year Built:1900
Learn about this property's history, neighborhood, taxes, schools and more.
Amenities
Location
Copyright © 2026 Corcoran. All rights reserved. All information provided by the listing agent/broker is deemed reliable but is not guaranteed and should be independently verified.