Updated9/4/2017
Added5/4/2017
About this Property
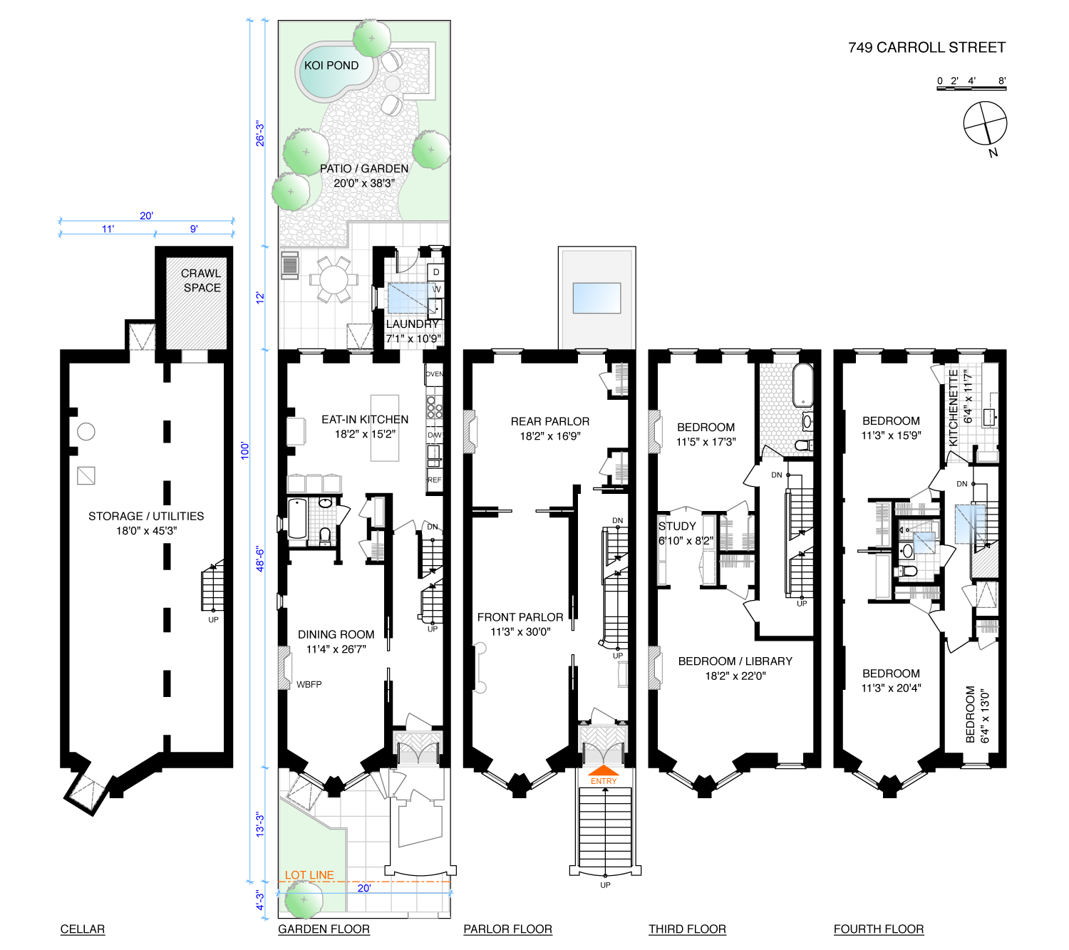
Park Slope Beauty! This semi-detached trophy 4 story, 2 unit residence currently arranged as a single unit townhouse features 5 bedrooms, 3 bathrooms and a garden with a koi pond. Built in the late 1800's, this Italianate Brownstone Townhouse on Carroll Street boasting over 4,300 plus sq ft is located on one of Park Slopes premiere blocks. This home features a stately front and rear parlor. Step right into the main doors of 749 Carroll Street and enter a palatial parlor floor with inlaid banded parquet floors, high ceilings, original etched glass, Jefferson shutters, vintage pocket doors, mantels, pier mirrors and an intricate mirrored cherry-mantle decorative fireplace awaits you. The garden level offers a sitting area or den with coffered oak ceiling, wood fireplace mantel, a fully renovated bathroom and a striking open-concept eat-in kitchen with tin ceiling, exposed brick features, an over-sized granite island, double-level oven, large fridge, Bosch dishwasher and an abundance of counter space, storage space and seating for an outsized dining table perfect for entertaining. Right off this spacious kitchen is the laundry/mud room that leads into a garden satisfying your green-thumb cravings. The third floor has an owner's suite, a home library and a windowed bathroom with an encased cast iron tub. The fourth floor offers a kitchenette, 3/4 bath, living room, bedroom and office that lends itself to a separate suite affording additional privacy. Two blocks to Prospect Park, this fantastic Park Slope location is near all the gourmet shops and chic restaurants. Convenient to all trains and buses in Park Slope.
Details
  • Status:No Longer Available
  • Size:4296 Sq Ft
  • Type:Mulit-residential Townhouse
  • ID:5123276
  • Tax:$ 972
  • Year Built:1899
Learn about this property's history, neighborhood, taxes, schools and more.
Marketproof building overview
Amenities
Location

Copyright © 2026 Corcoran. All rights reserved. All information provided by the listing agent/broker is deemed reliable but is not guaranteed and should be independently verified.