Updated3/6/2018
Added11/1/2017
About this Property
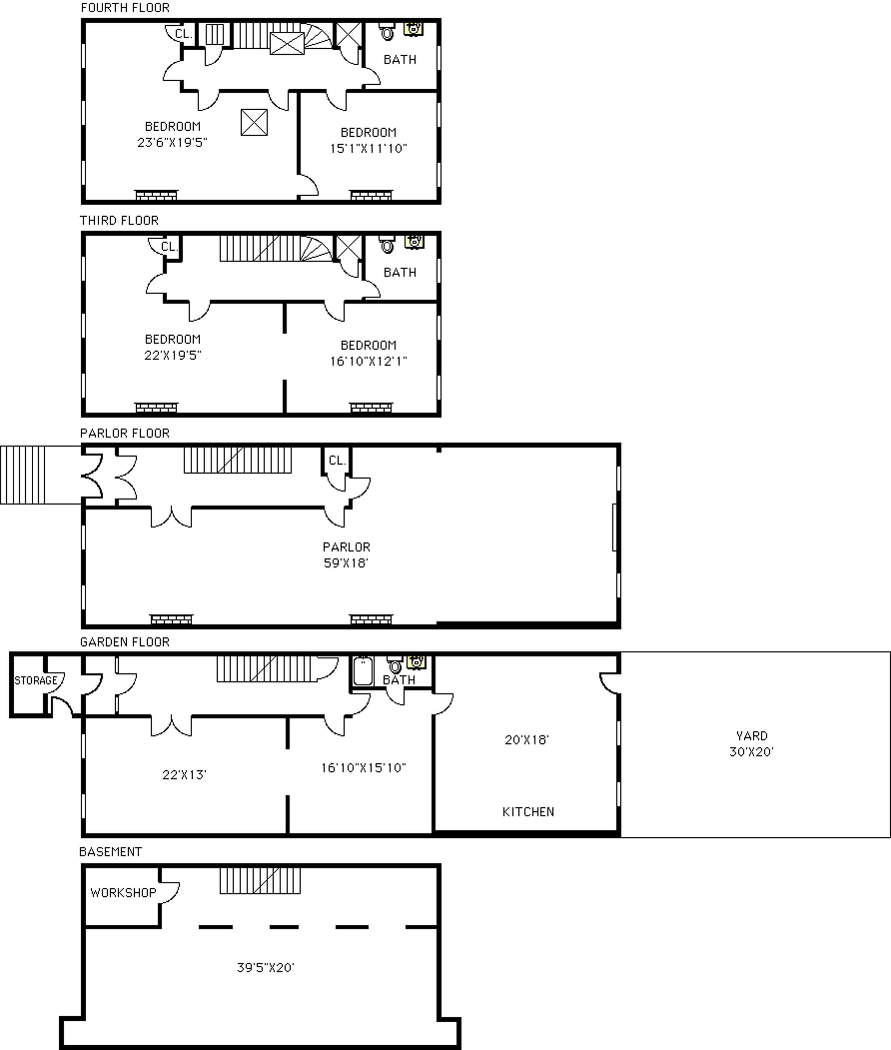
(OPEN HOUSE CANCELLED. PLEASE CALL W INQUIRIES). EXCITING OPPORTUNITY TO CUSTOM DESIGN THE HOME OF YOUR DREAMS! This amazing 4-story brownstone has been untouched for decades but has all the ingredients to be a show-stopper. Since the 1940s, 93 Division has been home to The Seneca Club, one of NYCs oldest civic and community organizations. Some of the most legendary politicians from the modern era have graced its halls. From the moment you enter this turn-of-the-century home, you can feel its rich history and solid construction. Its 21-ft width is unusually generous, and both the garden and parlor levels extend a full 60-ft! The parlor is grand and glamorous and feels like a ballroom. Its light, bright and airy with gorgeous green views and dazzling south-facing sunshine. Its many features include: soaring 12-ft ceilings, floor-to-ceiling windows, Pierre mirrors, exquisite plaster detail, stained glass skylights and marble mantels. This is a once-in-a-lifetime opportunity to restore an exceptional property back to its original grandeur. Will be delivered vacant. CALL FOR APPOINTMENT
Details
  • Status:No Longer Available
  • Type:Single-family Townhouse
  • ID:4327724
  • Tax:$ 1197
  • Year Built:1899
Learn about this property's history, neighborhood, taxes, schools and more.
Marketproof building overview
Amenities
Location

Copyright © 2026 Corcoran. All rights reserved. All information provided by the listing agent/broker is deemed reliable but is not guaranteed and should be independently verified.