Updated1/13/2017
Added9/12/2015
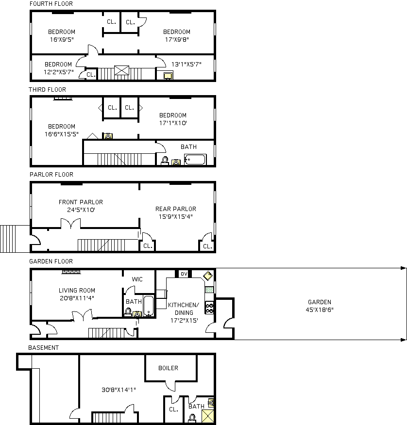
About this Property
1425 Pacific Street is a unique 4-story, 2-family brownstone with tons of original details located on a wonderful block in booming Crown Heights. This house needs everything, so please be prepared to bring a contractor and architect. Many original details remain such as mantels, doors and moldings. Lovely location just a stone's throw from restaurants, cafes and nightlife plus the C train on Fulton taking you straight to Manhattan. Currently vacant and delivered as such.
Details
  • Status:No Longer Available
  • Size:2688 Sq Ft
  • Type:Mulit-residential Townhouse
  • ID:3498552
  • Tax:$ 270
  • Year Built:1915
Learn about this property's history, neighborhood, taxes, schools and more.
Marketproof building overview
Amenities
Location

Copyright © 2026 Corcoran. All rights reserved. All information provided by the listing agent/broker is deemed reliable but is not guaranteed and should be independently verified.