Updated1/13/2017
Added9/10/2014
About this Property
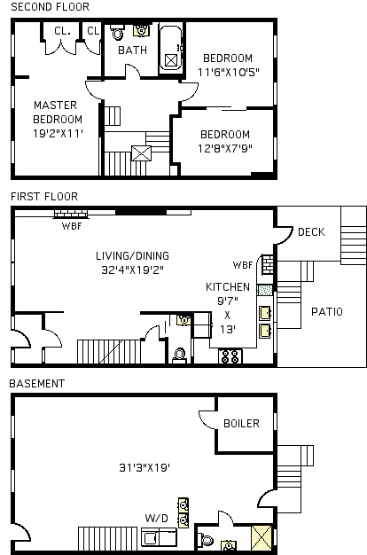
RENAISSANCE BROOKLYN. Bespoke renovation & design. Single unit, turn-key house at the intersection of Bed Stuy and Clinton Hill. Every surface, space and system has been carefully considered, restored and renovated with an artist's eye and artisan's craftsmanship. The buttoned up and reserved facade quietly holds back the brilliant display of material choices inside. Through the restored entry you are flanked with shiplap paneling, white oak floors, exposed brick, recycled lathe, exposed I-beams, 'Black Iron' painted stairs, a restored slate WBF and custom cabinetry. The living room opens to the gallery-esque dining room with hidden HVAC and delicate lighting. Serving this space is an open kitchen with a countertop cook's fireplace, reclaimed steel windows, exposed beams and, in the corner, a large transom that bestows light on the 1/2 bath hidden in the entry. Upstairs, past a host of architectural curiosities is a large, sun bathed landing with three rooms and a shared bath. The front bedroom has three casement windows that face the house's lovely London Plane on the street, a built in bookshelf + a dressing area that is bathed in natural light. The back 2 rooms have a formidable set of pocket doors that allow for flexible use. In step with the house, the hall bath mixes subway tiles, brick, brass, porcelain, teak and marble in a subtle melody of materials. The backyard, well maintained in a similar manner, places a dwarf maple next to cedar fencing, custom iron work, succulents and bluestone tiles. Here is your one chance to be the next curator of this stunning home.
Details
  • Status:No Longer Available
  • Type:Single-family Townhouse
  • ID:3356829
  • Tax:$ 280
  • Year Built:1915
Learn about this property's history, neighborhood, taxes, schools and more.
Marketproof building overview
Location

Copyright © 2026 Corcoran. All rights reserved. All information provided by the listing agent/broker is deemed reliable but is not guaranteed and should be independently verified.