Updated1/13/2017
Added8/17/2013
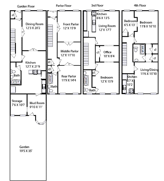
About this Property
Situated on perhaps one of the best blocks in the neighborhood, sits this four story three family home. Located within the Stuyvesant Heights Historical District, this solid brownstone is configured as a garden and parlor duplex and two 1.5 bedroom rentals. The lovely parlor floor retains most of the original woodwork and architecture dating to the 1880's. Some of the original features include, pocket shutters, wooden mantels, peer mirror, oak floors, stained glass and ornate wooden doors. This lovely home is built 19.5 ft wide and 42 ft deep plus a small extension on the garden level. The garden level has a large eat-in kitchen, bedroom, laundry room, den and a full bathroom. The parlor level has a front, middle and rear room. The top two rental units are generating $1,600 and $1,500 per month. The leases expire December 2013 and July 2014. The units are in good condition each have 1.5 bedrooms with modern kitchens and bathrooms. The block is quiet, leafy and near the Kingston/Throop C train.
Details
  • Status:No Longer Available
  • Size:3276 Sq Ft
  • Type:Mulit-residential Townhouse
  • ID:2778539
  • Tax:$ 239
  • Year Built:1888
Learn about this property's history, neighborhood, taxes, schools and more.
Marketproof building overview
Amenities
Location

Copyright © 2026 Corcoran. All rights reserved. All information provided by the listing agent/broker is deemed reliable but is not guaranteed and should be independently verified.