Updated9/5/2019
Added10/5/2018
Added10/5/2018
Active
No Longer Available
About this Property
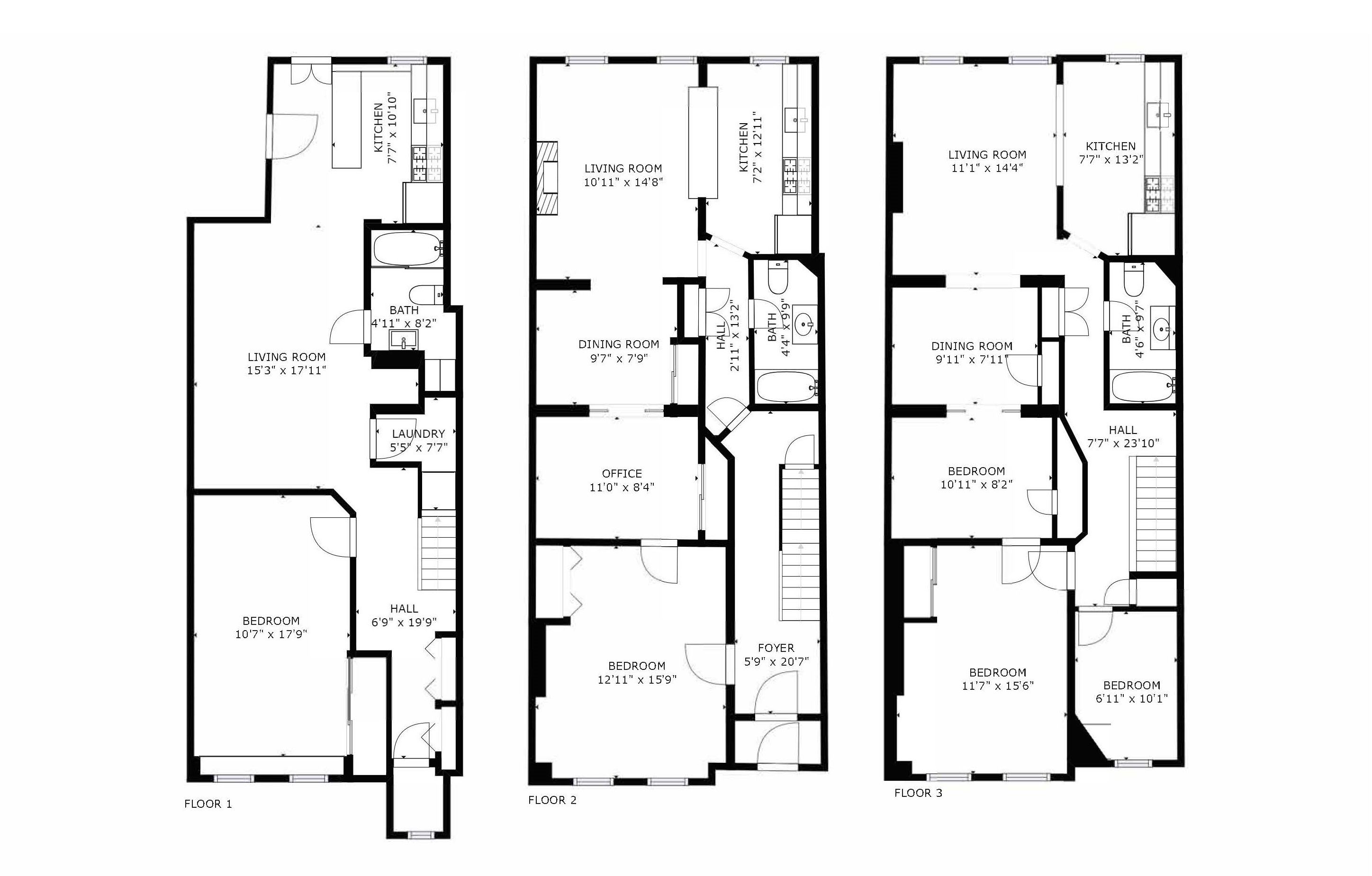
Built in 1910 and nicely renovated/updated, 417 42nd Street is a wonderful 2-family home located on a very desirable tree-lined block in Sunset Park. The residence features lovely classic features like high ceilings, hardwood floors, tasteful moldings, charming fireplace and exposed brick walls, as well as a gated front courtyard, durable rubber roof and newer mechanicals. The best part is the expansive private north-facing rear yard with a large paver stone area for outdoor parties and plenty of room for planting! Both apartments are spacious, airy and light-filled. The first-floor apartment offers generously-sized rooms: a living room with fireplace, an adjacent open kitchen with a huge breakfast bar, a formal dining room, home office, 2 sizable bedrooms and a full bath. This can easily be combined with the finished tile-floored lower level, with separate zoned heating, a living area, kitchen, bedroom/bonus room, full bath and laundry room, to create a fabulous owner’s duplex! The second-floor apartment is also well-proportioned and comfortable with 6 large rooms: a living room, kitchen, dining room, 3 bedrooms and a full hall bath. Make your home downstairs where you can enjoy tremendous living space and get great income for the upstairs apartment, or rent out both! The address is outstanding, in one of the hottest neighborhoods in Brooklyn, steps to Sunset Park with panoramic city views a block away. You’ll also enjoy great shopping along 5th Avenue, proximity to the amazing shops and restaurants of Industry City, an eclectic selection of neighborhood eateries, R train at 45th Street, and D/N/R at 36th Street.
Details
- Status:No Longer Available
- Size:3000 Sq Ft
- Type:Multi-family
- Tax:$ 420
- Year Built:1910
Learn about this property's history, neighborhood, taxes, schools and more.
Location
Copyright © 2026 Century 21 Block & Lot Real Estate. All rights reserved. All information provided by the listing agent/broker is deemed reliable but is not guaranteed and should be independently verified.