Updated11/13/2025
Added10/23/2025
Added10/23/2025
Active
No Longer Available
About this Property
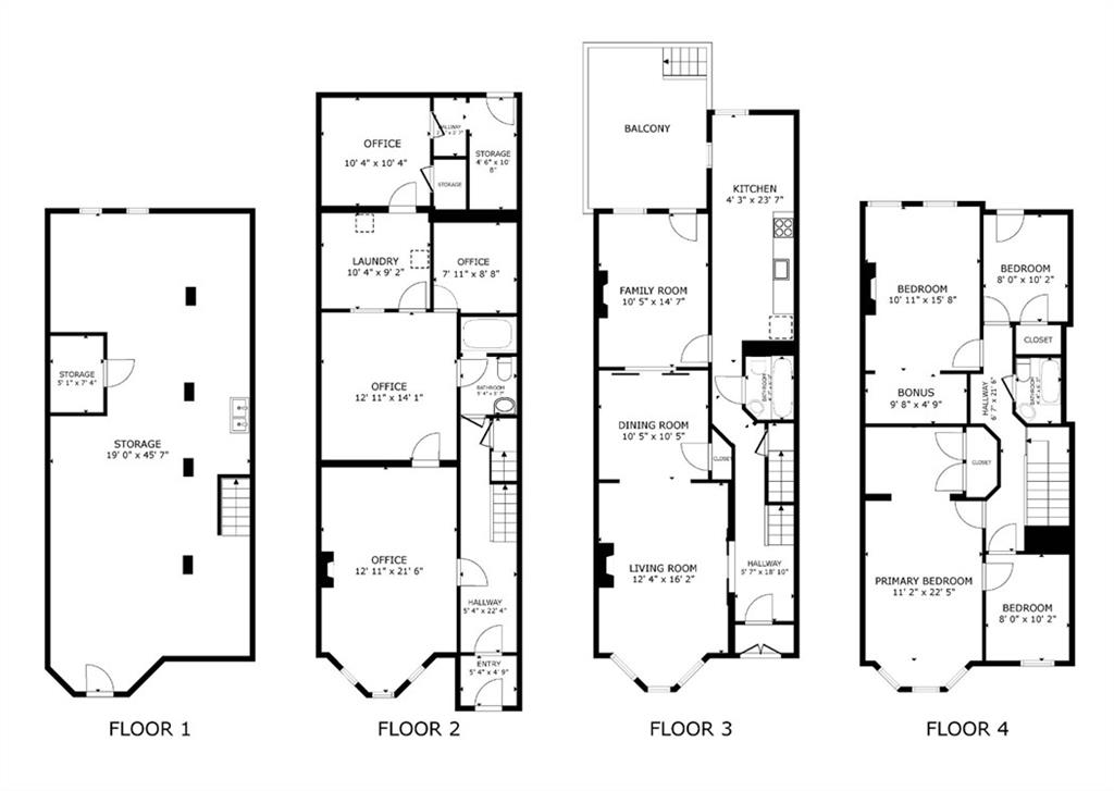
Welcome to 455 58th St. - Located in the Sunset Park South Historic District Built in 1910, these 2 families, is currently configured as an upper duplex, over a garden unit, which was formerly used as a doctor's office. There are details galore throughout this true gem of a home that just awaits your vision and modernization. The parlor floor boasts 10 1/2-foot ceilings, working pocket doors, beautiful original woodwork, plaster work and multiple mantels. This home has 3 full floors and a full basement with an extension on the first and second floor. The extension creates a more unique layout that gives more space to the ground floor and a long EIK overlooking a parlor floor deck that sits above the larger garden level footprint. There is a large back yard with access from both units. The 3rd floor also has an exterior door with access over the extension's roof top for the potential of an additional deck to be added. This home is A MUST SEE! Check out our 3D video tour for this property for a preview of this property. Great Location! This home is just minutes from a plethora of cafe's, restaurants, bakeries, markets, banks and the N, R, trains are a block away. The actual Sunset Park is a short distance, and the Belt Parkway and Verrazano Bridge are just minutes away. Don’t miss this fantastic opportunity in one of Brooklyn’s most vibrant neighborhoods!
Details
- Status:No Longer Available
- Type:Multi-family
- ID:7499293
- Tax:$ 8604
- Flooring: Hardwood
- Financing Type: Bank Mortgage,Cash
- Roof Type: Flat
- Yard: Back
Learn about this property's history, neighborhood, taxes, schools and more.
Amenities
Location
Copyright © 2026 Abacus Properties. All rights reserved. All information provided by the listing agent/broker is deemed reliable but is not guaranteed and should be independently verified.
Tax:$8,604
3
BA
7 BD