UpdatedToday
Added10/13/2025
Added10/13/2025
Active
About this Property
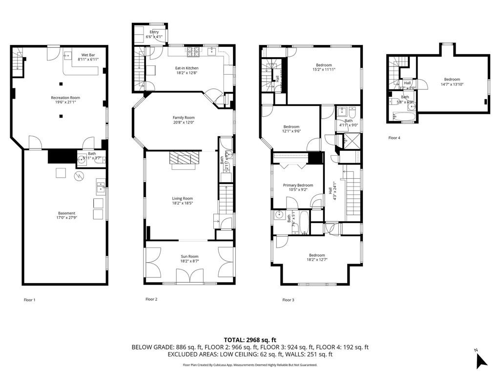
A RARE OPPORTUNITY IN A PRIME SHORE ROAD LOCATION!!! Set on an impressive 30' x 160' lot, this spacious home offers 5 bedrooms and 5 bathrooms, along with a private driveway and a detached two-car garage, a combination that is rarely found in the neighborhood.
Enter through the inviting enclosed front porch, the perfect place to relax and enjoy peaceful sunsets and seasonal breezes. The first floor features a gracious formal living room with a wood-burning fireplace, an elegant grand dining room ideal for large gatherings, and a spacious eat-in kitchen with access to the back patio. A convenient powder room completes this level.
The second floor offers four generously sized bedrooms and two full bathrooms, including a primary en suite. The third floor provides even more flexibility with a fifth bedroom and an additional full bathroom, ideal for guest space, a home office, or whatever best suits your needs.
The full basement includes a wet bar, half bath, and a separate room for storage, laundry, and utilities, with direct access to the backyard.
Throughout the home you’ll find beautifully refinished original parquet floors and an abundance of natural light from every room, capturing the warmth and sunset glow that make this home truly special.
The backyard is truly extraordinary, one of the largest in the area, offering endless possibilities to create your own private outdoor oasis. Whether you envision lush landscaping, a garden, a pool, or simply a peaceful retreat surrounded by greenery, this expansive space is ready to become your dream escape.
Located right off Shore Road Park and the scenic bike path, and with the express bus to Manhattan right around the corner, this home offers the perfect blend of beauty, comfort, and convenience in one of Brooklyn’s most sought-after neighborhoods!
Details
- Status:Active
- Size:2698 Sq Ft
- Type:Single Family
- ID:7489392
- Tax:$ 6761
- Year Built:1910
- Flooring: Hardwood,Tile
- Financing Type: 1031 Exchange,Bank Mortgage,Cash
- Style: Triplex
- Zoning: R2
- Roof Type: Pitched,Tile
- Yard: Back,Fenced - Full
- Rooms: 14
Learn about this property's history, neighborhood, taxes, schools and more.
Location
Copyright © 2026 Jabour Realty Company. All rights reserved. All information provided by the listing agent/broker is deemed reliable but is not guaranteed and should be independently verified.
Tax:$6,761
5
BA
5 BD