Active
About this Property
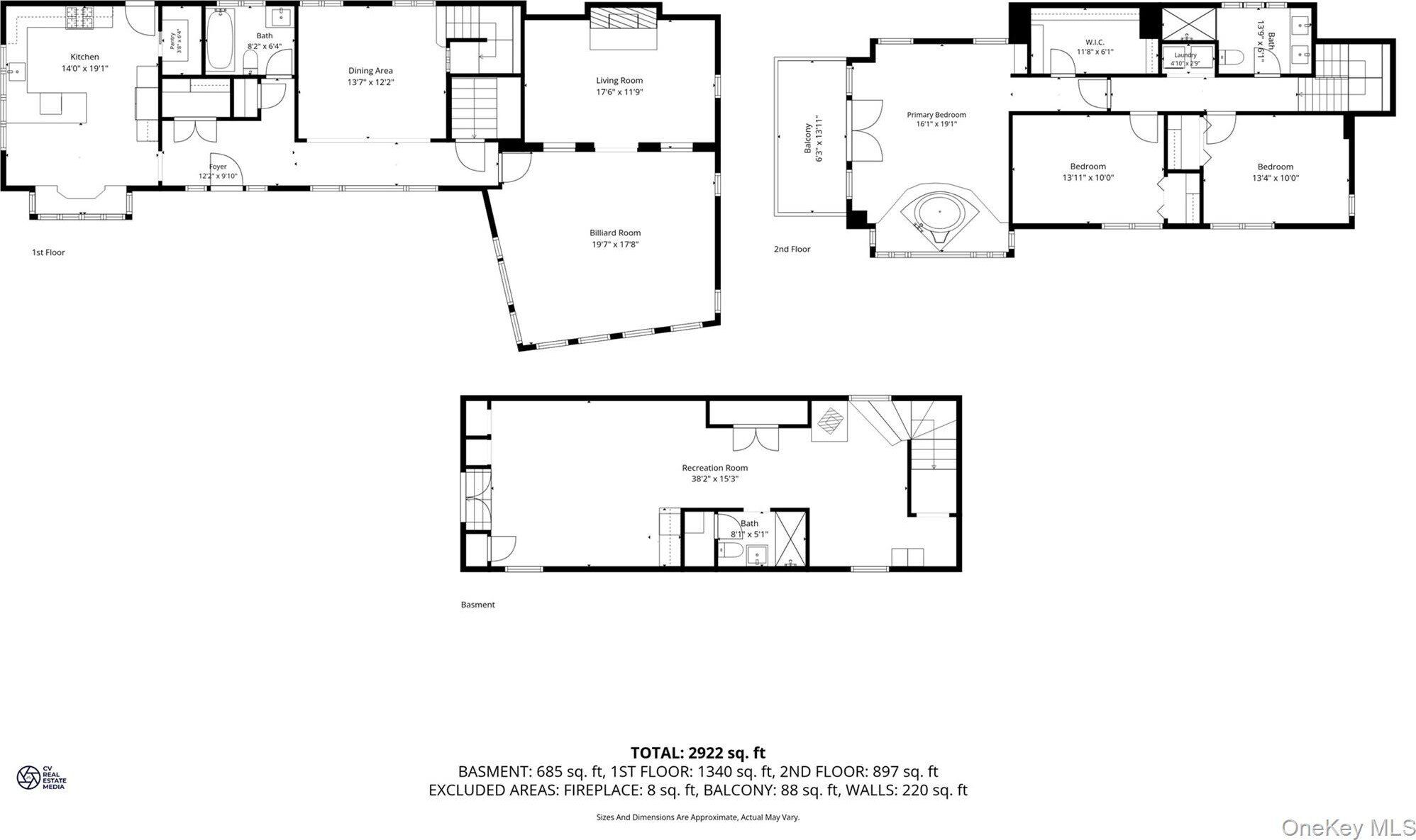
Set high atop a hillside in Piermont, this three-bedroom, three-bathroom river-view residence offers an uncommon sense of privacy, light, and retreat. Surrounded by natural beauty, the home captures expansive eastern-facing views of the Hudson River and bridge beyond, creating a serene backdrop that changes with the light and seasons. Thoughtful design and modern updates are integrated throughout, enhancing space, flow, and natural light. The layout balances openness with intimacy, offering spaces well-suited for both quiet reflection and gracious entertaining. Large windows frame the views while inviting the outdoors in, creating a strong connection to the surrounding landscape. Indoor and outdoor living unfold seamlessly, with areas designed for gathering, dining, and relaxation, as well as more private retreats. Equally suited as a full-time residence or a weekend escape, this Piermont home offers a rare combination of romance, tranquility, and everyday livability.
Details
- Status:Active
- Size:2467 Sq Ft
- Type:Single Family Residence
- ID:3yd-MLSLINY-951217
- Year Built:1955
- Current Source Id: 3yd-MLSLINY-951217
Copyright © 2026 OneKey MLS. All rights reserved. All information provided by the listing agent/broker is deemed reliable but is not guaranteed and should be independently verified.
3
BA
3 BD