Updated32 Days Ago
Added9/15/2025

35-05 72nd street unit: 3g

About this Property
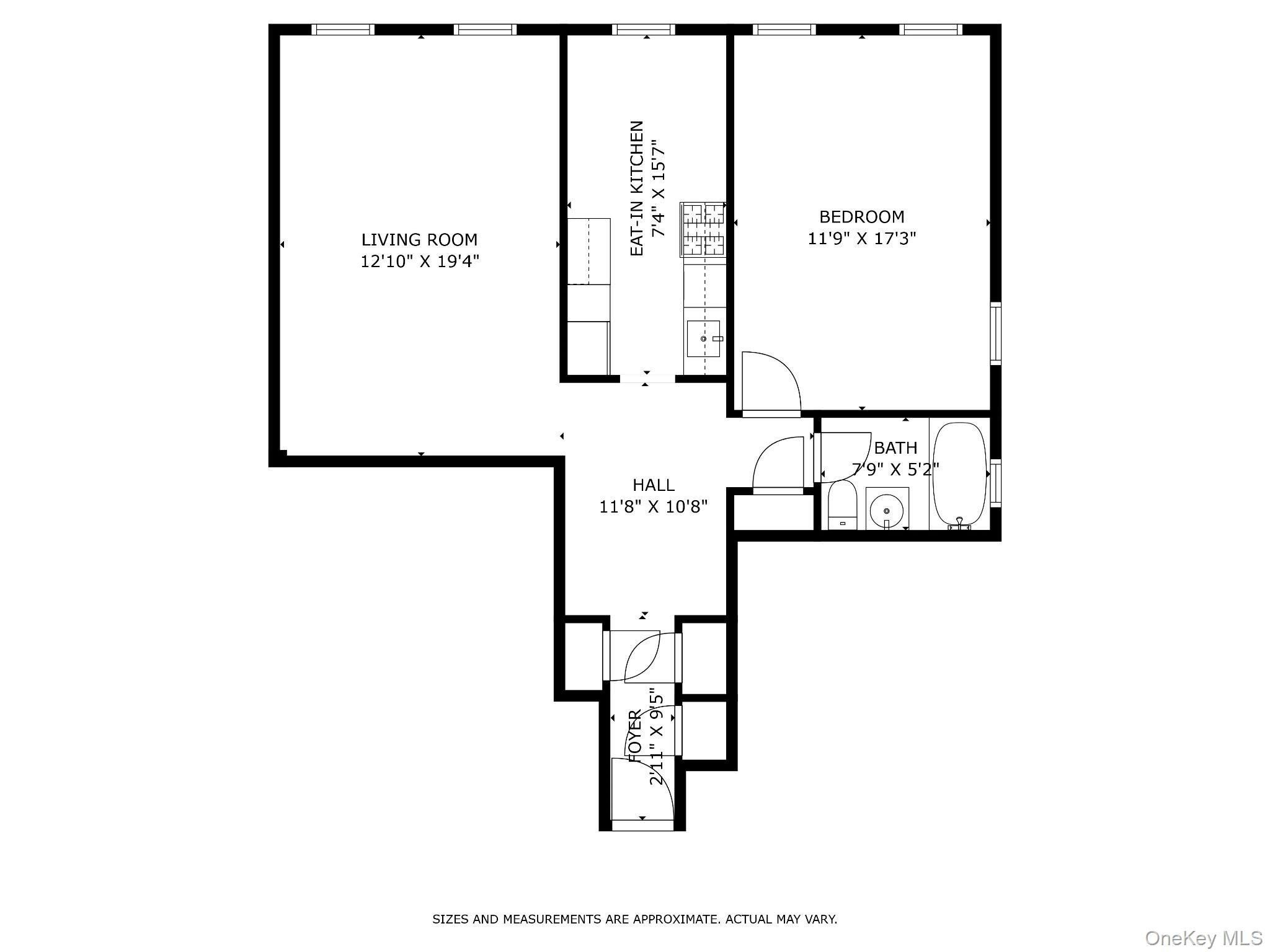
Welcome to this bright and spacious 1-bedroom, 1-bathroom co-op located in the well-maintained Jac Towers building. This unit features an open layout with hardwood floors throughout and large windows that fill the space with natural light. The kitchen offers modern cabinetry perfect for everyday living. Enjoy building amenities such as a full-time doorman, on-site laundry facilities, and storage options. Ideally situated in Jackson Heights, you're just steps from the 7 train, local buses, diverse dining, shopping, and nearby parks like Travers Park. Pet-friendly and ready to move in-this home combines convenience and comfort in a vibrant community.
Details
  • Status:Active
  • Size:800 Sq Ft
  • ID:3yd-MLSLINY-913105
  • Year Built:1936
  • Current Source Id: 3yd-MLSLINY-913105
Location

Copyright © 2026 OneKey MLS. All rights reserved. All information provided by the listing agent/broker is deemed reliable but is not guaranteed and should be independently verified.

1 BA
1 BD
Contact Us
Sida Zhuoma CBR
Charles Rutenberg Realty Inc