Gothic Revival in Clinton Hill Owned by Actress Lake Bell Asking $3 Million
This house — at 119 Vanderbilt Avenue in Clinton Hill’s Wallabout Historic District — has a number of points of distinction. First off, it’s Gothic Revival, a rarity among Brooklyn homes — built around 1852 according to the designation report. Second, the seller is actress and director Lake Bell and her husband Scott Campbell, a lauded tattoo artist.
This house — at 119 Vanderbilt Avenue in Clinton Hill’s Wallabout Historic District — has a number of points of distinction.
First off, it’s Gothic Revival, a rarity among Brooklyn homes — built around 1852 according to the designation report. Second, as noted by 6sqft, the seller is actress and director Lake Bell and her husband Scott Campbell, a lauded tattoo artist.
Finally, it’s got some unique design features. One that jumps out is the engraving on the floor in the parlor, which looks like something a tattoo artist might dream up. The kitchen is also distinctive, with its island of antiquated butcher block, vintage-looking cabinetry, exposed brick and oversized soapstone farmhouse sink.
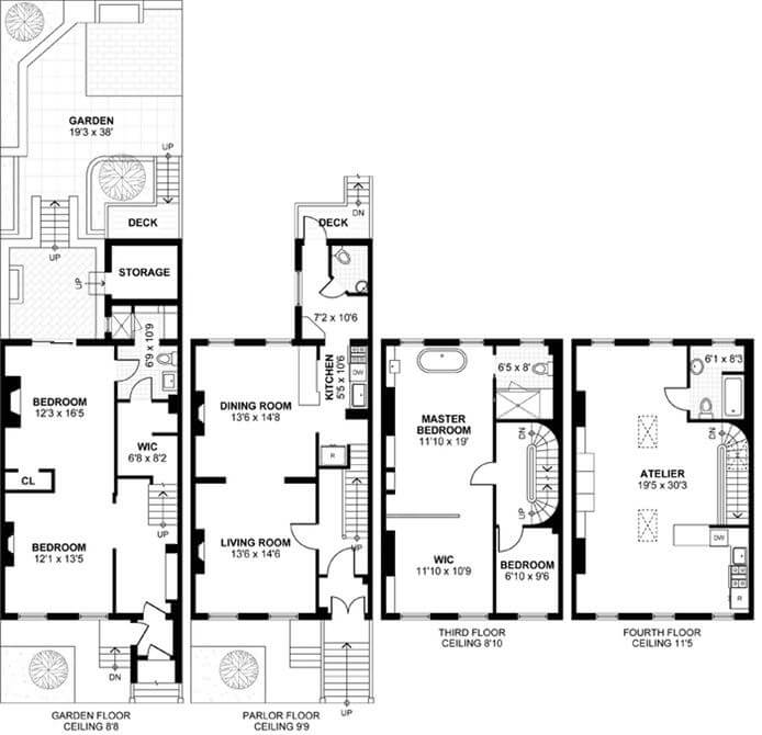
The house — a legal two-family that’s set up as a single residence — has otherwise been “customized from top to bottom in a truly Brooklyn style,” says the listing, from Nadine Adamson and Kelsey Hall of Brown Harris Stevens.
Save this listing on Brownstoner Real Estate to get price, availability and open house updates as they happen >>
There’s living space on the parlor level, and two bedrooms on the garden level below, one with a wood-burning fireplace. The third floor is a master suite that includes a mammoth walk-in closet with custom shelving, a freestanding tub by the window in the bedroom, and a Moroccan-tiled bathroom with a walk-in rain shower.
On top is an “atelier” with vaulted ceilings, wide-plank floors and a small second kitchen.
The backyard is awfully nice — nice enough that Lonny did a photo shoot there a while back. It’s beautifully landscaped and decorated, with an outdoor fireplace, a fountain, a bluestone patio and a 100-year-old mulberry tree.
There’s a refinished storage area and “extra large walk-in vault” in the basement and a laundry room under the stoop.
The asking price for all this distinction is a cool $3 million — around double what Bell paid for it three years ago, as 6sqft noted. Think some buyer will green-light Bell’s pitch?
[Listing: 119 Vanderbilt Avenue | Broker: Brown Harris Stevens] GMAP







Related Stories
- Find Your Dream Home in Brooklyn and Beyond With the New Brownstoner Real Estate
- Crown Heights Limestone With Barrel Front Asks $1.175 Million
- Italianate in Fort Greene Historic District With Seven Mantels Asks $2.875 Million
Email tips@brownstoner.com with further comments, questions or tips. Follow Brownstoner on Twitter and Instagram, and like us on Facebook.
What's Your Take? Leave a Comment