Updated3/31/2017
Added9/29/2015
Added9/29/2015
Active
No Longer Available
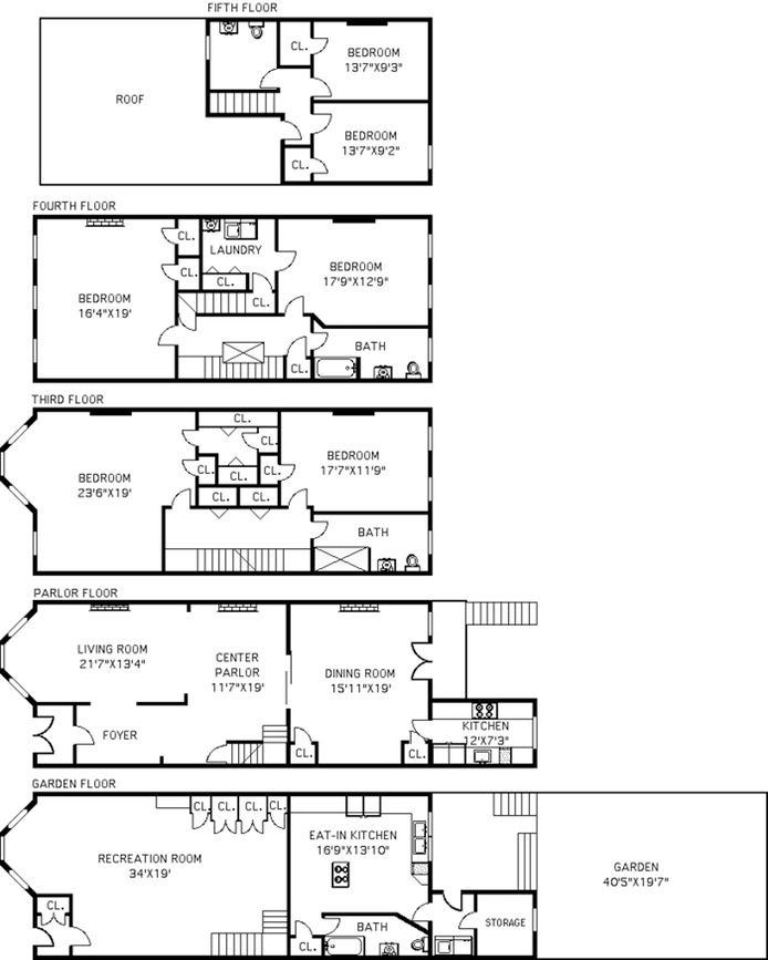
About this Property
This grand five-story limestone is handsomely decked in Roman maize brick and emboldened by three stories of arched bay windows. Enter the Parlor floor with its abundance of original detail and leaded stained glass. Play the chef in your Henrybuilt kitchen, with its Caesarstone counters, Sub-Zero refrigerator, Miele dishwasher and Wolf stove. Grab a cup and meander out to your garden. It's sculpted in a fusion of bluestone and patterned brick, brimming with horticultural treasures. The upper floors have six full bedrooms and two and a half baths. With a second kitchen on the garden floor, the house can be used as either a one or two family. Laced with tasteful updates that spare no expense, there are still opportunities to make your own mark. Updated mechanicals. Zoned for PS 321. Set on one of the most desirable blocks in Park Slope, a few doors from glorious Prospect Park. Within two blocks of all the marvels that 7th Avenue has to offer. Just a few blocks from the trains, the main library and farmers' market of Grand Army Plaza. This offering is hard to resist.
Details
- Status:No Longer Available
- Size:4733 Sq Ft
- Type:Single Family
- ID:13357971
Learn about this property's history, neighborhood, taxes, schools and more.
Amenities
Location
Copyright © 2025 Brown Harris Stevens. All rights reserved. All information provided by the listing agent/broker is deemed reliable but is not guaranteed and should be independently verified.