Active
No Longer Available
About this Property
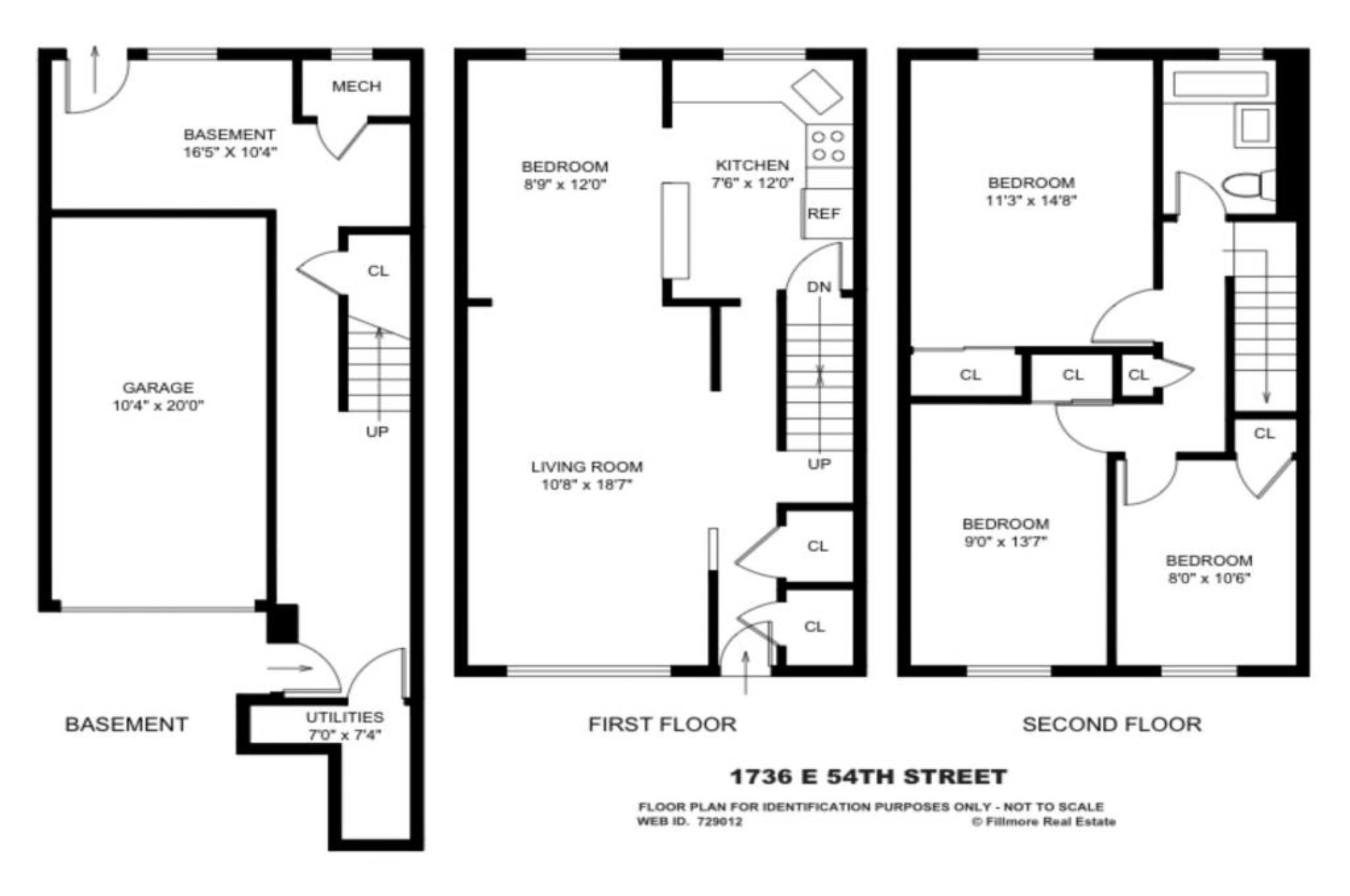
Location, Location: Look no further! This Gorgeous Redone 1 family in the heart of Old Mill Basin requires you to do nothing but move in and enjoy the charm and detail , that a fully redone home offers. Guaranteed to put a smile on your face. The property features Large Living, Formal Dining and a Kitchen w/ Granite counters, personal lighting, stainless steel appliances and a fully tiled ½ bath, on main floor. Enjoy high ceilings and plenty of New windows that provide lots of natural light and 3 very spacious bedrooms. A Lovely Finished walk in additional living space for guests and entertaining. You will enjoy a beautiful back yard with an extensive area for hosting family barbeques, parties and gatherings. Private Drive in Front and Full Garage. This home is located on a picturesque block only steps to Flatbush avenue B41, and plenty of local shopping and schools. By appointment only. Great School District. Walk to All. By Appt Only, Seller request a Written offer with attached Prequalification. Open House Access. Call Office for any additional questions.
Details
- Status:No Longer Available
- Size:1955 Sq Ft
- Type:Single Family
- ID:729012
Learn about this property's history, neighborhood, taxes, schools and more.
Brownstoner Features
-
Top 10 Brooklyn Real Estate Listings: A Glassy Condo and a Queen Anne Townhouse
This week the top 10 listings on Brownstoner included a glassy condo in Greenpoint with a dramatic double-height curved wall of windows and some classic 19th century townhouses.
Read More -
Four Move-In Ready Houses to See This Weekend, Starting at $589K
This weekend brings the first open houses of spring, which arrived this week according to the calendar even if meteorological cooperation was scant.
Read More
Location
Copyright © 2026 Fillmore Real Estate. All rights reserved. All information provided by the listing agent/broker is deemed reliable but is not guaranteed and should be independently verified.