Updated1/13/2017
Added8/29/2013
About this Property
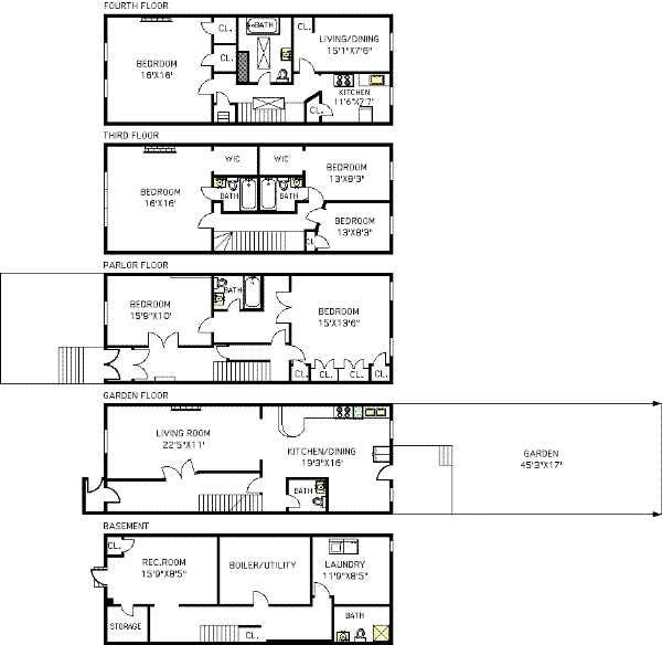
Live in an 1899 Built Bedford-Stuyvesant Brownstone full of detail and character within. This 4-story brick multifamily townhouse is conveniently situated at the borderline of where Bed-Stuy begins and Clinton Hill ends, near shopping, eateries and transportation. 476 Greene Avenue is currently consisted of an owners triplex, gut renovated in 2007, and two full floors above which are ready to be remodeled to your preference. The parlor level, garden floor and finished basement make up owners triplex. The parlor consists of two large bedrooms, a full bath and has 11FT ceilings, plenty of closets, parquet wood floors and original crown moldings. The garden floor with 8FT+ ceiling height consists of the living room w. oak wood flooring and a wood burning fireplace, powder room, and open eat-in kitchen w. tiled flooring and stainless steel appliances which leads out to the 45x17 backyard garden. The basement has full height ceilings, tiled flooring and features a laundry room, rec. room, and bathroom. The 3rd and 4th floors (approx. 750SF each)are a designers dream and needs some TLC. They possess the same charming elements within the rest of the house such as high ceilings (nearly 10FT), parquet wood flooring, original solid wood staircase and doors, crown moldings and stained glass windows. 17x45 house sitting on a 17x100 lot; will be Delivered Vacant.
Details
  • Status:No Longer Available
  • Size:3001 Sq Ft
  • Type:Mulit-residential Townhouse
  • ID:2803267
  • Tax:$ 224
  • Year Built:1899
Learn about this property's history, neighborhood, taxes, schools and more.
Marketproof building overview
Amenities
Location

Copyright © 2026 Corcoran. All rights reserved. All information provided by the listing agent/broker is deemed reliable but is not guaranteed and should be independently verified.